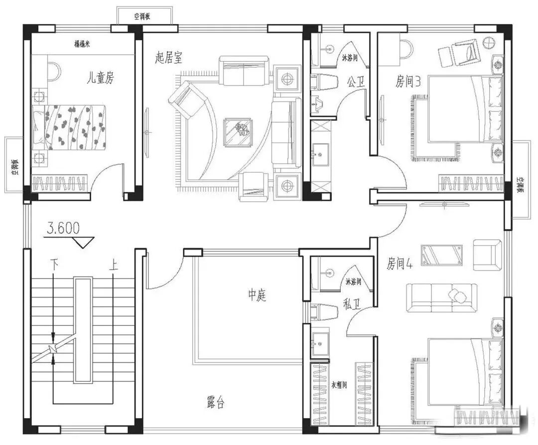
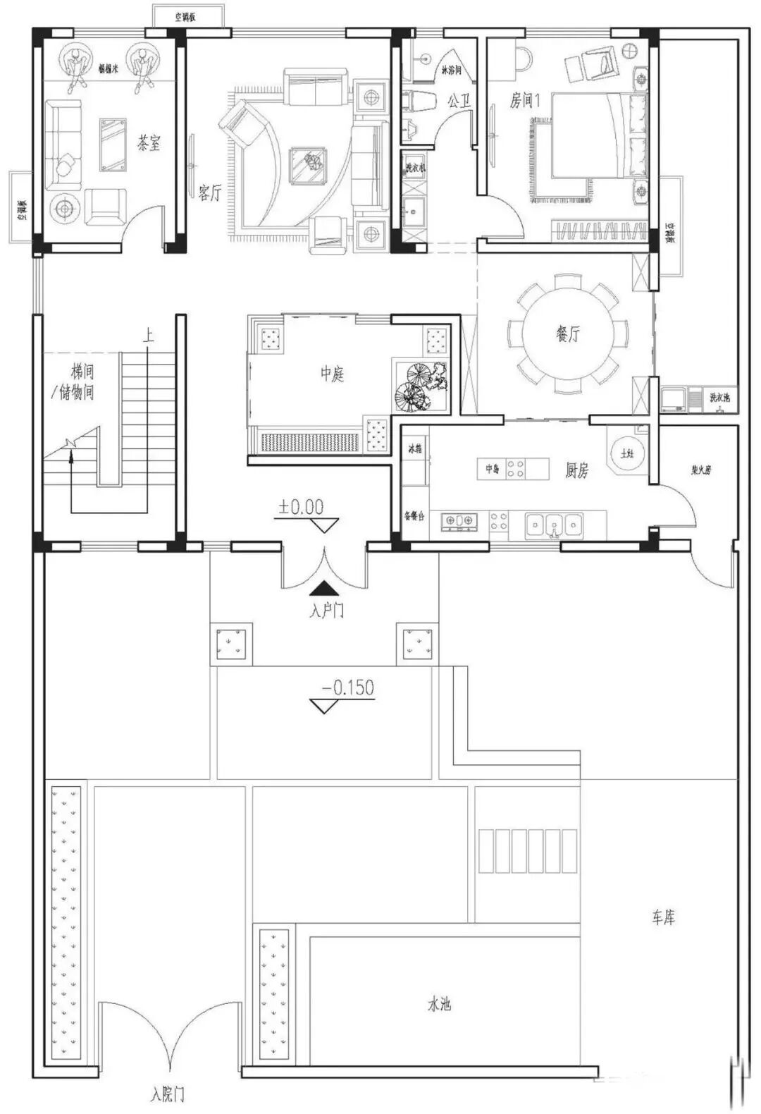
5款别墅外观大气,建栋给父母养老,比住城里舒服
父母操劳了一辈子,任劳任怨,我们能做的就是在我们有能力的时候尽一份孝心,喧嚣的城市他们不习惯,那就在老家享受惬意的田园生活,与清风明月相伴,红了樱桃,绿了芭蕉,这春去秋来,都是诗意。
01



02



03



04



05

父母操劳了一辈子,任劳任怨,我们能做的就是在我们有能力的时候尽一份孝心,喧嚣的城市他们不习惯,那就在老家享受惬意的田园生活,与清风明月相伴,红了樱桃,绿了芭蕉,这春去秋来,都是诗意。
01



02



03



04



05
