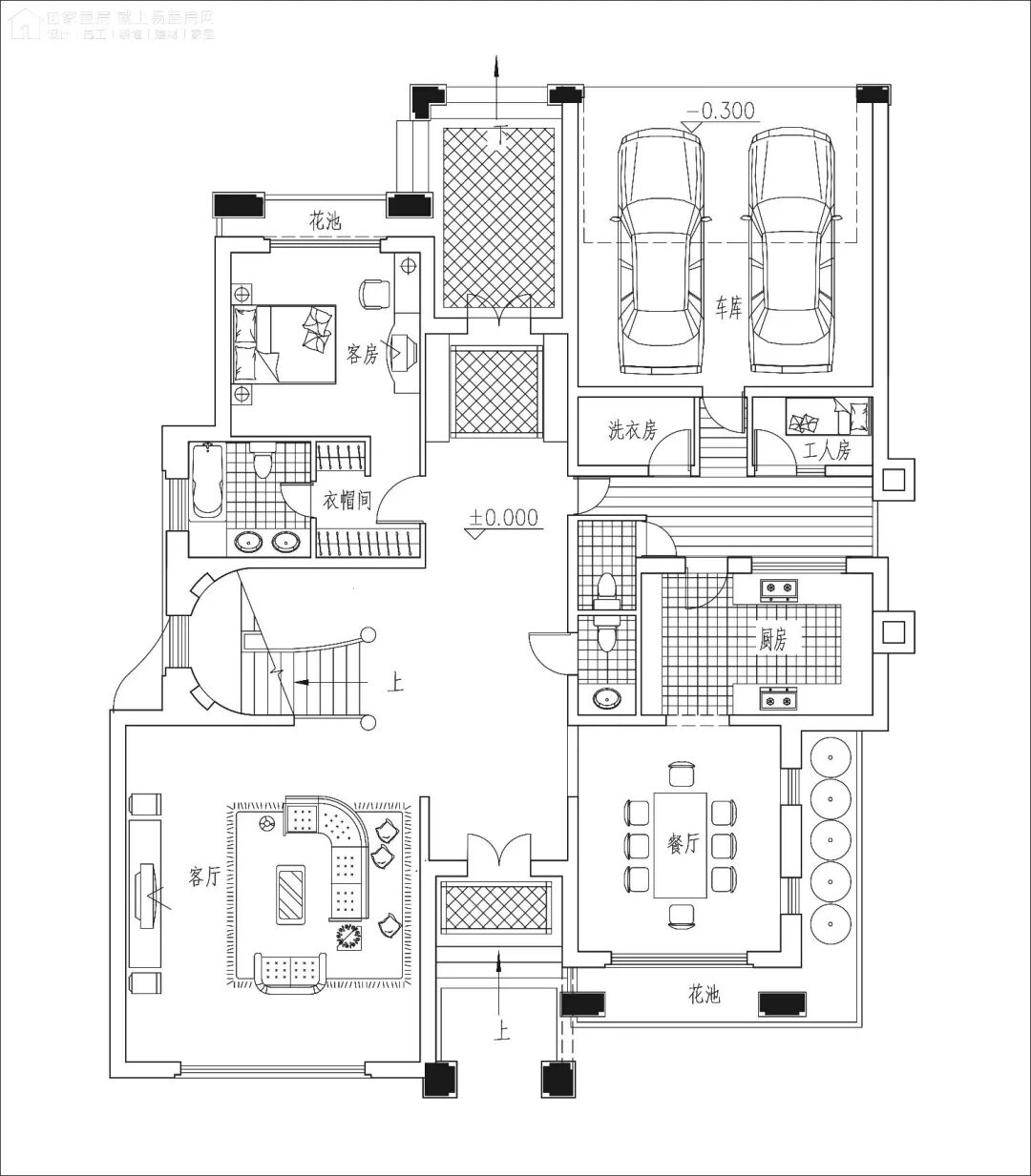
户型推荐:5款别墅有院子带车库

01







02





03




04




05





上一篇:11款农村自建别墅户型图(含平面图)
下一篇:轻钢别墅案例分享 | 这样的一栋轻钢房屋你喜欢吗?