5款别墅气质高雅,一庭一院蕴含生活的诗意
第
1
款
—The first—
建筑面积:188㎡
建筑尺寸:10.85m×8.9m
占地面积:104.6㎡
户型概况:3室2厅1厨3卫2储藏
建筑结构:框架结构



第
2
款
—The second—
面宽:12.4米
深度:11.8米
占地面积:142平方米
总建筑面积:255平方米


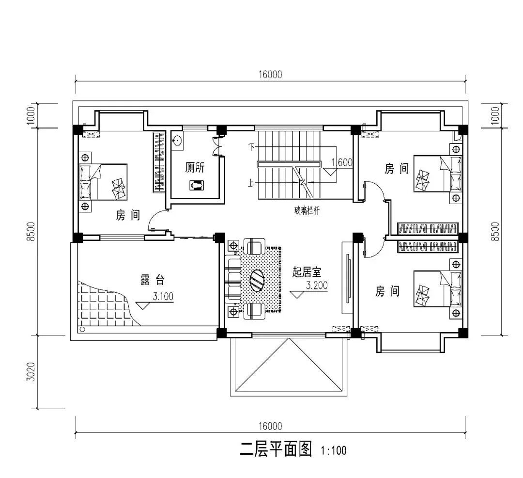
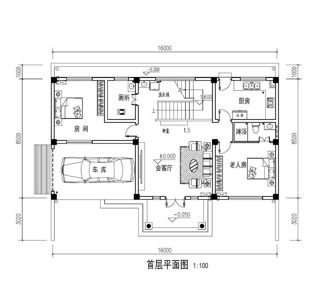
第
3
款
—The three—
占地尺寸:16米×8.5米
占地面积:136平方米
建筑面积:240平方米
层数:二层



第
4
款
—The four—
开间:9.9米
进深:9.6米
占地面积:95平方米
建筑面积:163.78平方米
建筑层数:两层
第
5
款
—The five—
面宽:23米
进深:9.5米
占地面积:192.2平方米
建筑面积:390.5平方米




