富贵还乡盖好房!5款二层别墅让人念念不忘,建栋享受家乡好风景
走过那么多山和水,还是家乡的风景让人念念不忘,是充满记忆的景色,更是填满往昔岁月的人与物,今天介绍几款经典二层别墅,每一款都可以与家乡美景相互辉映,与家人相守,与爱人相伴,与友人相知,让接下来的每一天都是值得珍藏的美好时刻。
占地尺寸:11.9x10.2米
占地面积:120平方
建筑面积:243平方米


占地尺寸:12x10.8米
占地面积:130平方米
建筑面积:257平方米

占地尺寸:12.34米*14.14米
占地面积:151.09平方米
建筑面积:300.11平方米


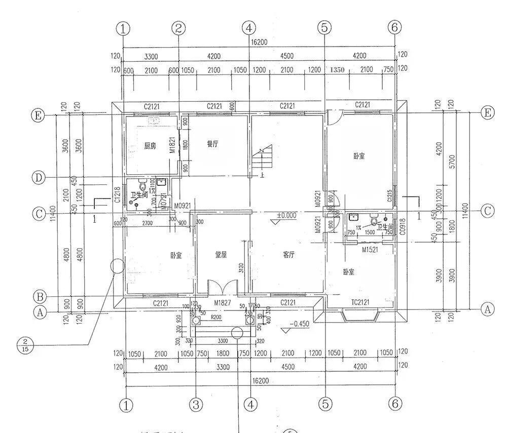
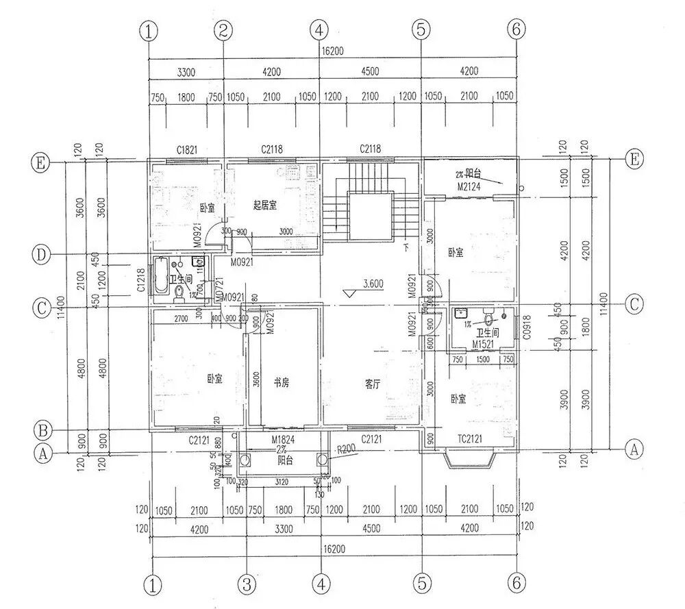
占地尺寸:16.2米 *11.4米
占地面积:180.56㎡
建筑面积:354.8㎡


占地尺寸:14.7X10.2米
占地面积:149.03平方米
建筑面积:333.32平方米



