5款二层别墅气质典雅,建一栋家里老人笑开花
01
占地尺寸:14米,进深:15.6米
占地面积:217.9平方米
建筑面积:638.42平方米
建筑高度:11.1米



02
占地尺寸:13.4米×11米
占地面积:147平方米
建筑面积:260平方米
层数:2层



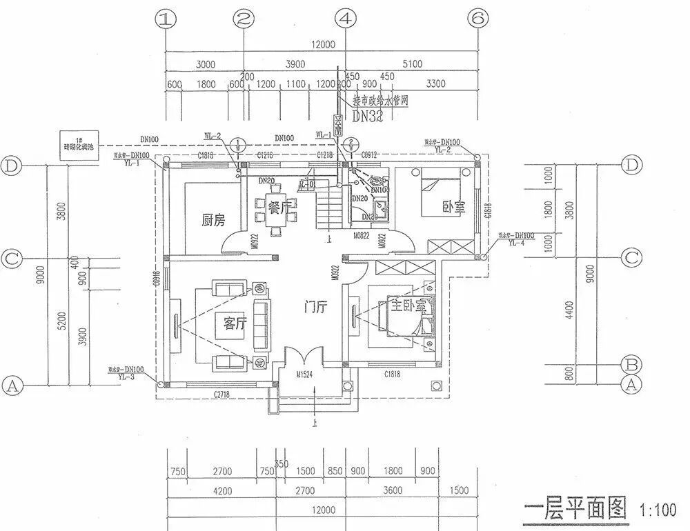
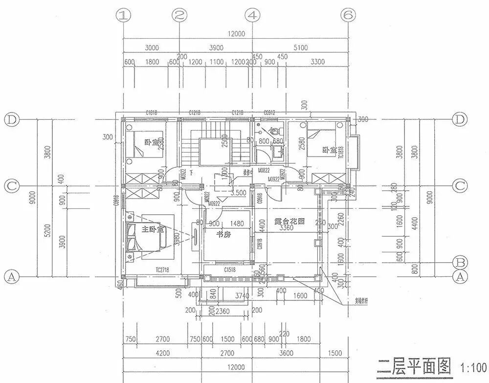
03
占地尺寸:12米×10.8米
占地面积:126平方米
建筑面积:250平方米



04
占地尺寸:12.6米×12.4米
占地面积:156平方米
建筑面积:290平方米
层数:2层



05
占地尺寸:12x9米
占地面积:100.25平方米
建筑面积:184.67平方米
层数:2层




