买房不如回家建别墅,5款一层户型经典大气传三代,老一辈都说好
第一款

开间:15.3米
进深:11.1米
占地面积:176平方米
建筑面积:176平方米


第一款

开间:12.7米
进深:9.5米
占地面积:120平方米
建筑面积:120平方米


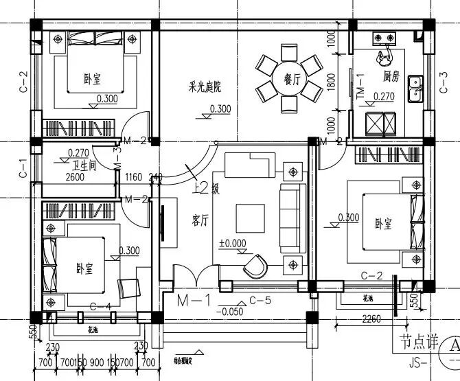
第一款

开间:17.2米
进深:8.4米
占地面积:144平方米
建筑面积:144平方米


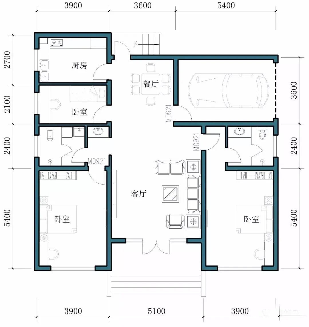
第一款

占地尺寸:13.2mX12.8m
建筑面积:158㎡
建筑高度:5.1m
建筑概况:3室2厅2卫1厨1车库


第一款

占地尺寸:16米*12米
建筑高度:6.18米
占地面积:192平方米
建筑面积:192平方米



