12X12米方正大气三层别墅,光效果图就成全村焦点,户型挑不出毛病
城市买房看这看那,总受限于开发商的想法,想要找到完美贴合自己的房子太难了,这是农村人可就偷偷窃喜,自建房我们可以自行调整,想怎么建就怎么建,就是地大就是任性。今天给你们带来的这款三层别墅,完美贴合你们的习惯那是不可能的,但是从风水从布局从外观上来说个个都是一等一的好户型,12X12大众尺寸,光效果图就成为全村焦点,户型挑不出毛病,一起跟我看下吧!

外形整体方正大气又不失层次感,错落有致更添不凡气势,色调以红黄为主,鲜艳夺目,不容忽视的存在,细看细节处做的也很到位,文化石的运用更是点睛之笔。
户型基本信息
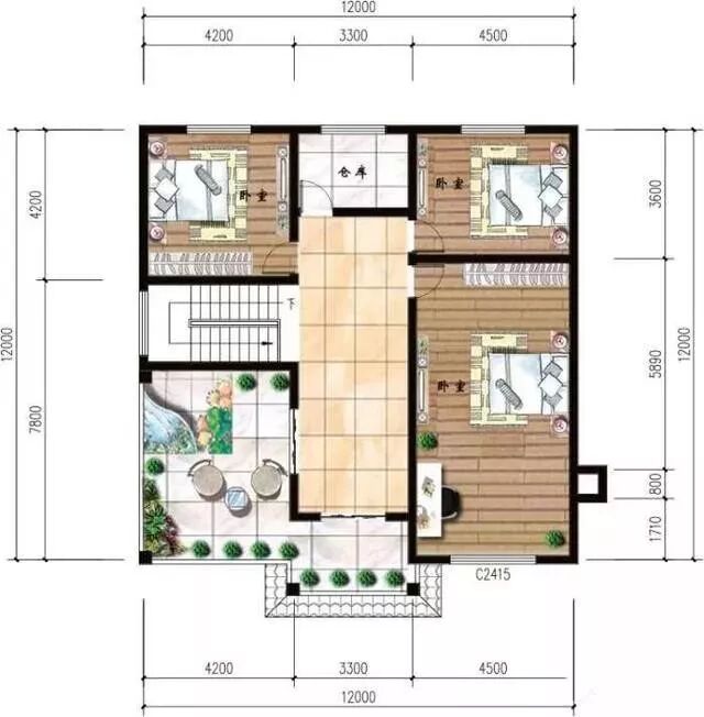
开间:12米进深:12米
占地面积:146.15平方米
建筑面积:415.47平方米
结构类型:装配式建筑轻钢结构



布局合理完善,9房的设计大家族最爱,豪气万分,仓库的设计符合农村实际接地气,露台自然不用多说,农村必备。
这样的户型你喜欢么?
版权说明:部分图片素材来源网络,无法核实源出处,版权归原作者所有,如涉及作品内容、版权和其他问题,请与本网联系,我们将在第一时间删除内容。

