小面宽大豪宅!5款经典装配式别墅永不过时
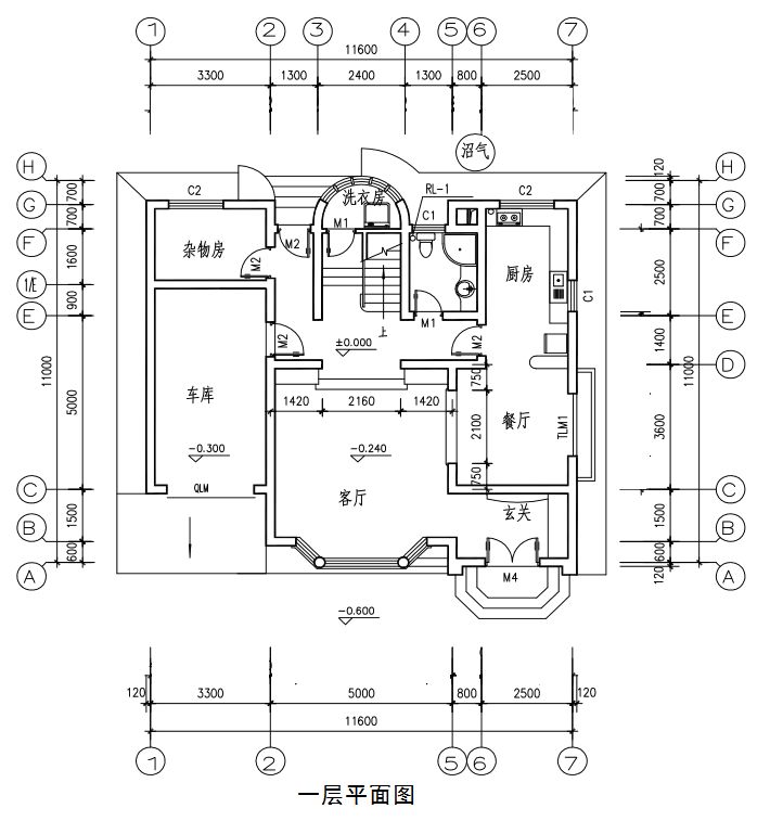
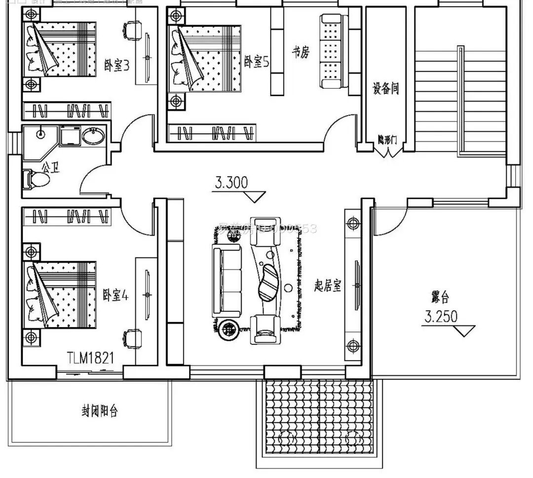
第一款
开间:11.6米
进深:11米
占地面积:130.23平方米
建筑面积:282.10平方米

第二款
开间:19.9米
进深:12.2米
占地面积:240平方米
建筑面积:434平方米


第三款
开间:13.6米
进深:13.5米
占地面积:183平方米
建筑面积:329平方米

第四款
开间:13.5米
进深:8.7米
占地面积:117平方米
建筑面积:201.78平方米

第五款
开间:13.3米
进深:11.7米
占地面积:155平方米
建筑面积:280平方米


