农村有地就是好!五款经典户型任你挑!
现在农村人有钱了,家家户户开始盖别墅了,但是别墅有大有小,很多朋友圈传播的别墅看着很漂亮,但是不适用,今天给大家推荐的这五个户型,造型都比较简单实用,没有过多花里胡哨的装饰,大方实用,布局功能方面都符合农村生活需求,需要建房的朋友可以用来参考。


建筑层数:二层
建筑占地面积为:10.7m*7.9m=90平方米
建筑高度:10.5m(含屋顶),坡屋顶


设计功能:
一层:门廊、客厅、卧室两间、卫生间、餐厅;
二层:阳台、客厅、儿童房/书房、卧室两间、卫生间、棋牌室。
▲图片编号:08040103
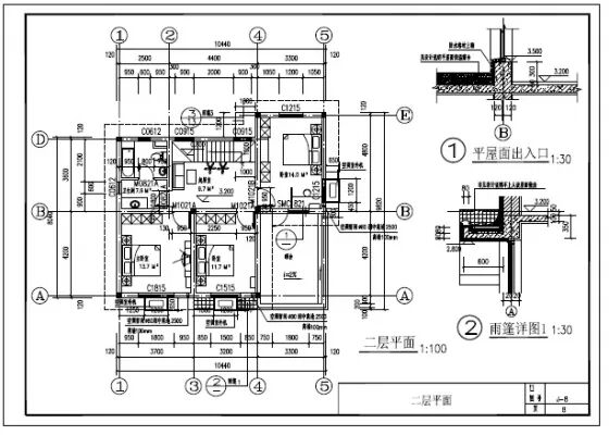
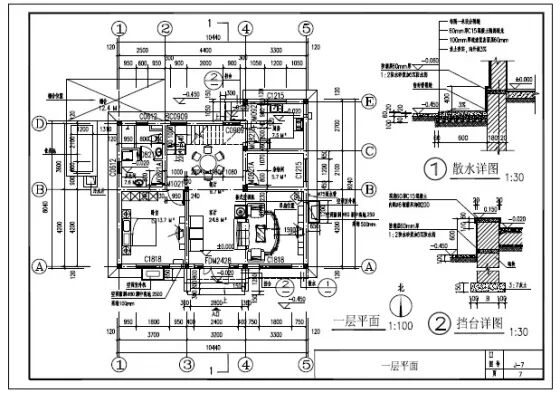
建筑占地面积:10.44米×9.24米
建筑面积:162.5平方米
建筑占地面积:88.2平方米
建筑层数:二层
屋顶形式:坡屋顶
建筑高度:8.828米(含屋顶)


设计功能:
一层:客厅、卧室、卫生间、厨房、餐厅、杂物间;
二层:起居室、卧室、晒台、卧室、卫生间、主卧室。

建筑占地面积:10.8米×9.3米
建筑层数:二层半
屋顶形式:坡屋顶
总高度:7.94米(含屋顶)


设计功能:
一层:大堂、厨房、餐厅、储物室、卫生间、卧室;
二层:起居室、卧室、卫生间、储物室、主卧室(附阳台和书房)。
▲图片编号:03210101
建筑占地面积:10.04米×8.34米
用地面积:80平方米
建筑面积:149.5平方米
建筑层数:二层(层高3.2米)
屋顶形式:坡屋顶
建筑总高度:8.8米(含屋顶)


设计功能:
一层:客厅、卧室、厨房、餐厅、卫生间、储藏室;
二层:主卧室、卧室、晒台、书房、起居室、卫生间。
▲图片编号:04070101
开间:15.3米
进深:9.9米
占地面积:133.15平方
建筑面积:266.3平方米
建筑高度:10.13米(含屋顶)坡屋顶;
层数: 二层


功能设计:
一楼设有客厅、门厅、餐厅、厨房、卧室2间、卫生间;
二楼设有三间卧室、2个卫生间、衣帽间、书房 阳台。
▲图片编号:04210101
门面宽:11.76米
进深:13.16米(门檐1.4米)
占地面积:140平方米
总建筑面积:290平方米
建筑层数:二层
屋檐口高:6.8米(不含屋顶)
建筑总高度:7.25米
屋顶形式:坡屋顶


功能设计:
一层:客厅、厨房、餐厅、楼梯、2间卧室和1个卫生间;
二层:起居室(附阳台)、卧室、楼梯、卧室、卧室、卫生间。

▲图片编号:11180101
建筑占地尺寸:11.9mx12.7m
占地面积:124平方米
建筑面积:228平米
建筑层数:二层
建筑高度:8.7m
屋顶形式:坡屋顶


功能设计:
一层:客厅、厨房、餐厅、卧室、公卫、酒窖、楼梯间、车库;
二层:4间卧室、公卫、露台、阳台。

