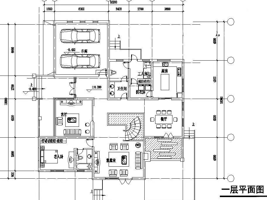
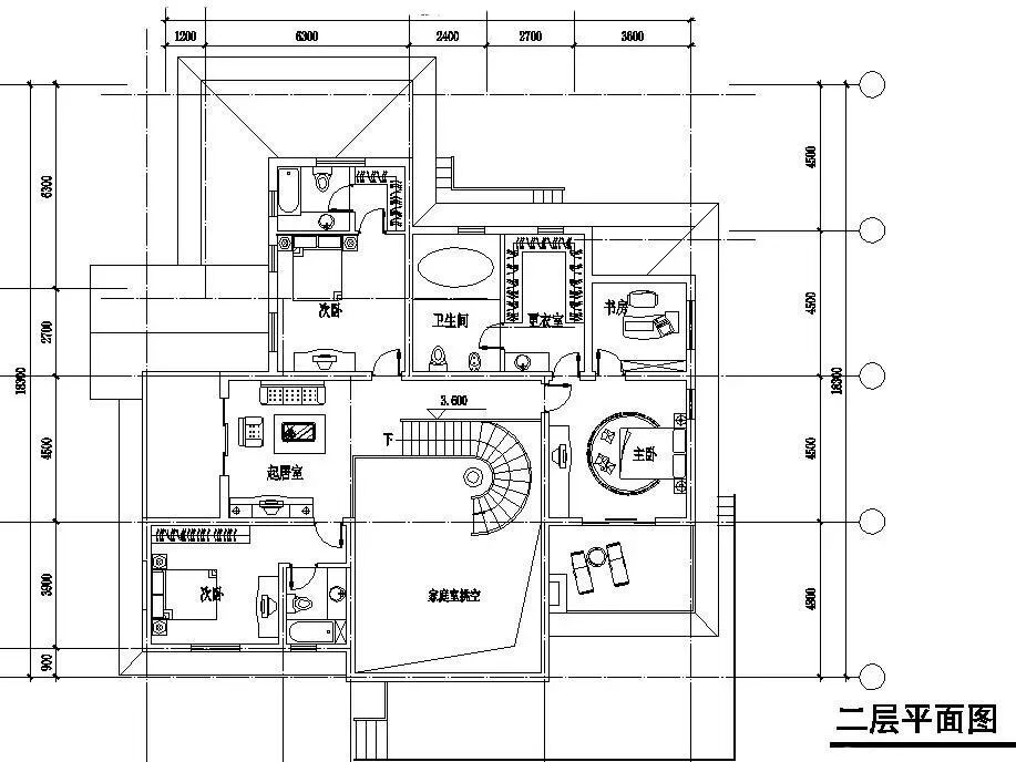
美得过分了吧!5套经典二层户型被热议,造价25万起,秒杀欧美洋房


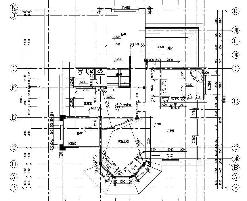
01





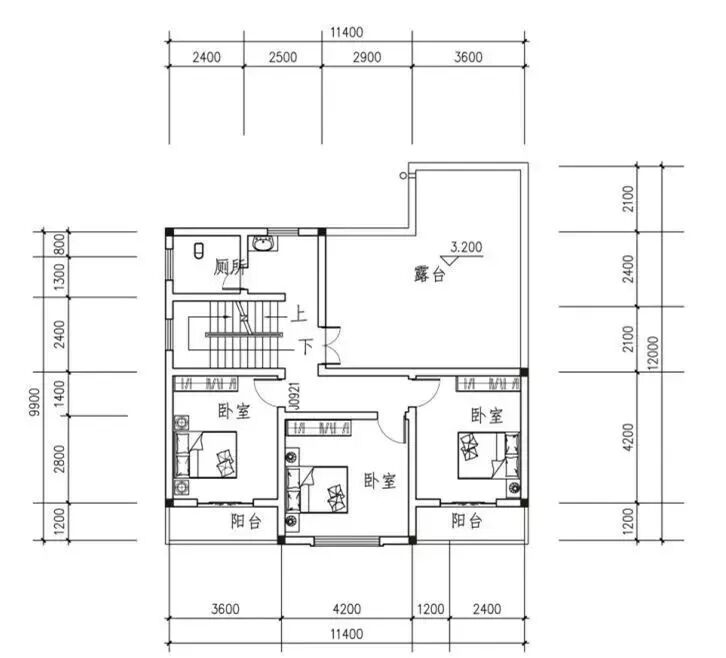
02







03






04





05




上一篇:农村有地就是好!五款经典户型任你挑!
下一篇:山沟沟里的土屋大变身!轻钢装配的乡野诗意