简直太享受了!这8款别墅能建一栋是真的有本事
一层设有2室2厅1厨2卫1娱乐室。
入户设有玄关
二层设有5室1厅3卫1书房3阳台。




一层设有:玄关、客厅、2卧室、2卫生间、餐厅、厨房
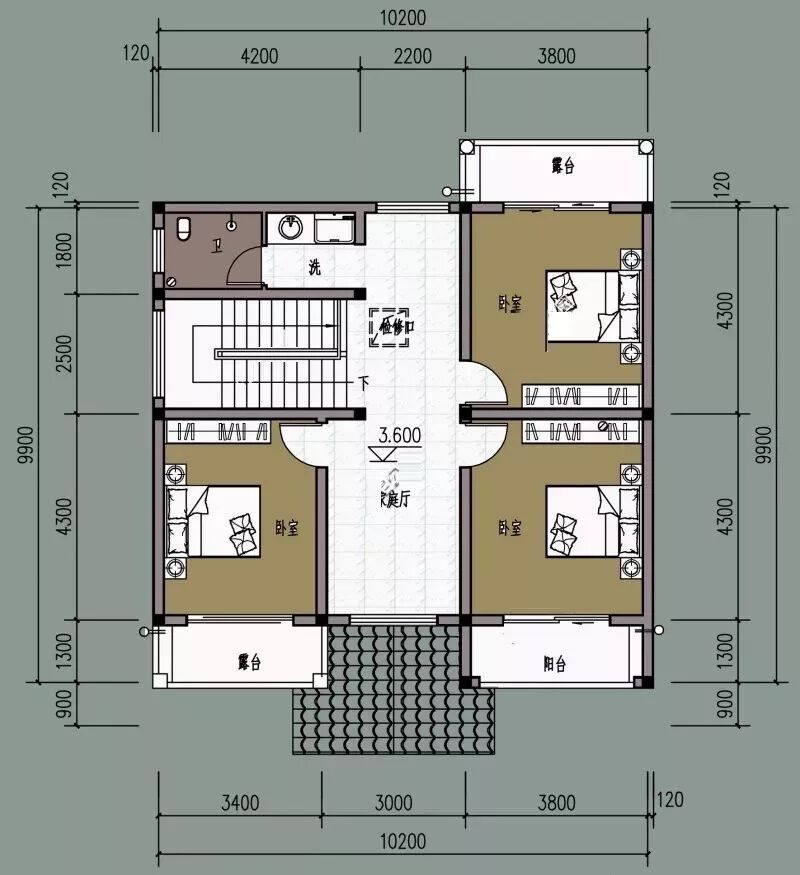
二层设有:4卧室、3卫生间、客厅、阳台

一层户型设计:
客厅、卧室x2、厨房、餐厅、卫生间
二层户型设计:主卧、起居室、卧室x2、书房、卫生间、阳台
一层设计有一室一厅一厨2卫;
二层设计有3室1厅1卫,总共4间卧室。

一层设有:客厅、厨房、餐厅、2卧室、2卫生间
二层设有:3卧室、2卫生间、阳台
扫码了解更多建房行业资讯
点我咨询留下您的需求,我会第一时间回复您!
点我咨询


