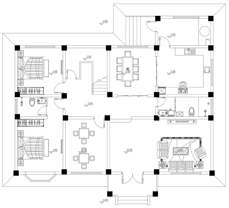
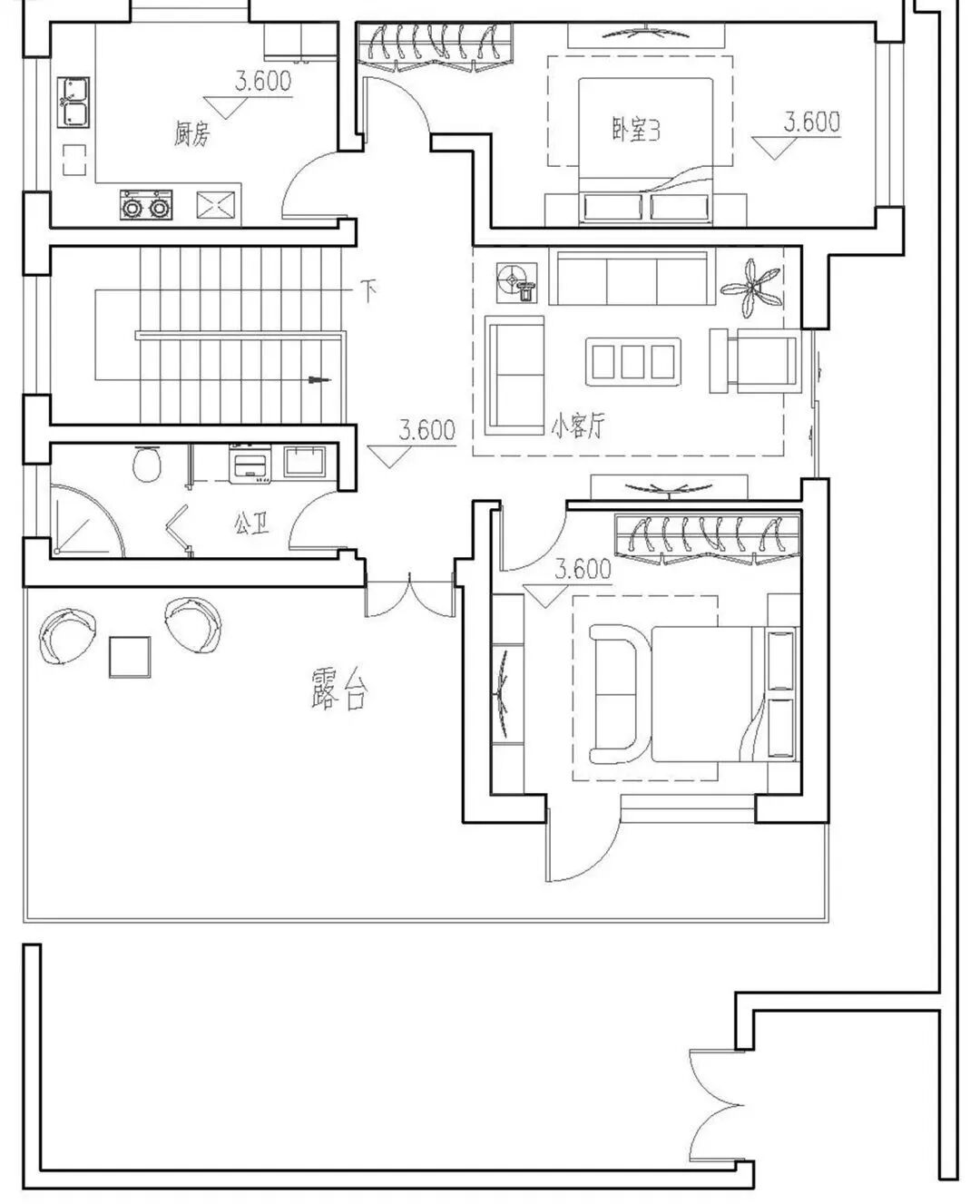
农村建房土?5款装配式轻钢别墅好看还不贵,有车库储物间,心动了吗?






















上一篇:轻钢别墅,最受欢迎的是它!5款二层经典户型
下一篇:难以抵挡的魅力!6款自建别墅爸妈看到就心动