难以抵挡的魅力!6款自建别墅爸妈看到就心动
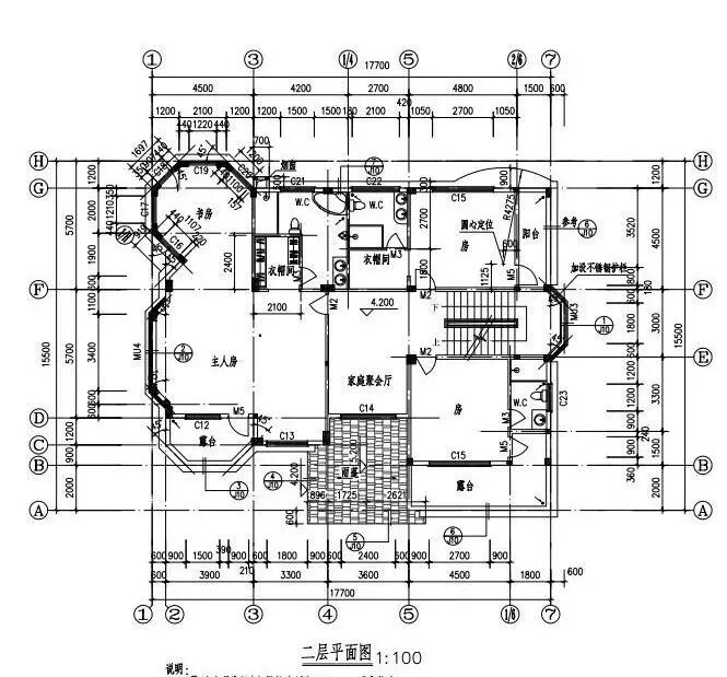
开间:17.7米
进深:15.5米
占地面积:274.35平方米
高度:11.7米

开间:11.5米
进深:11.2米
占地面积:274.35平方米
高度:11.7米
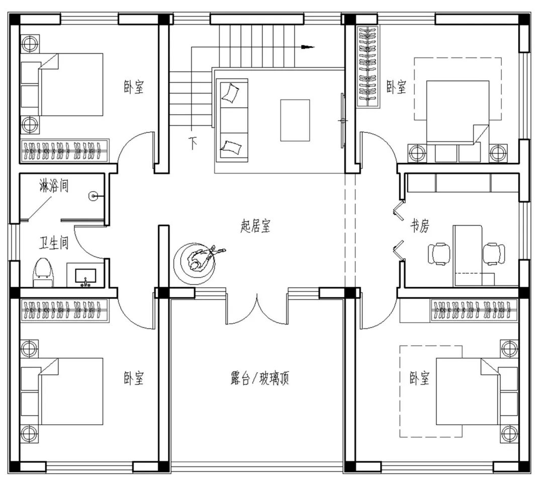
开间:13.2米
进深:11.12米
占地面积:119平方米
建筑面积:222平方米


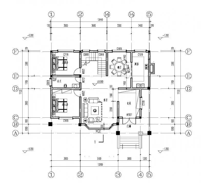
开间:12.5米
进深:13.4米
占地面积:167.50平方米
建筑面积:294平方米
开间:12.3米
进深:10.8米
建筑面积:262平方米
层数:二层


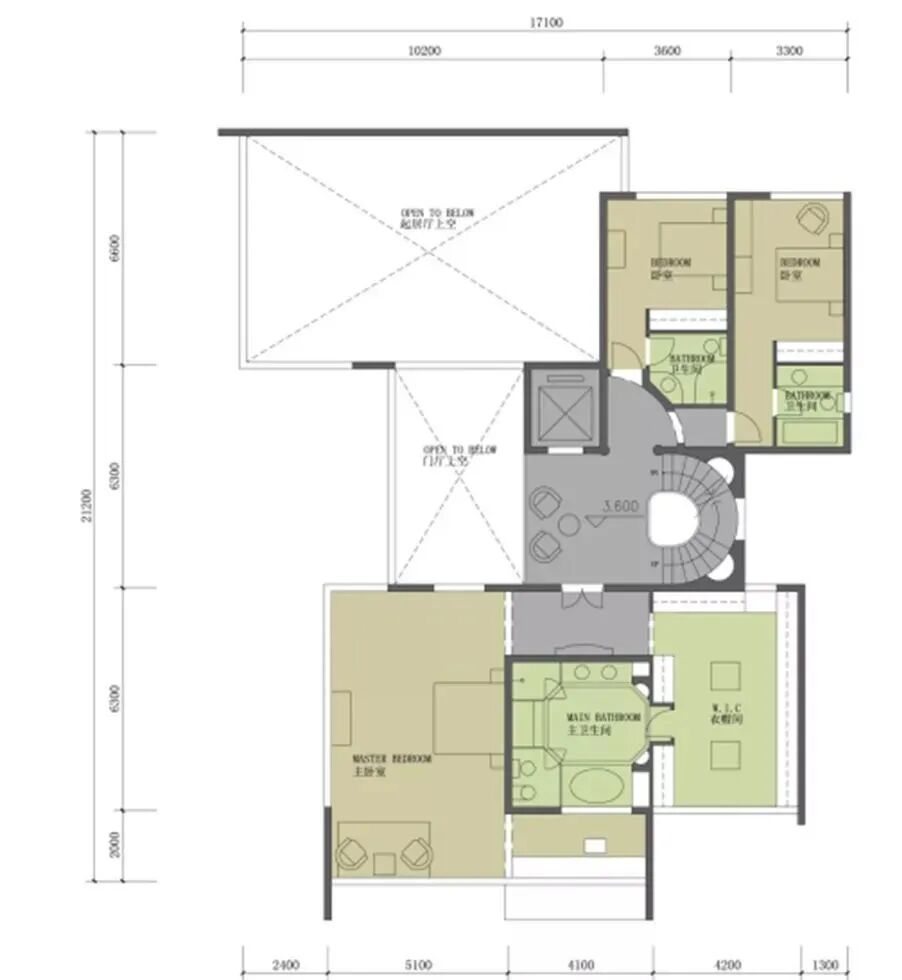
开间:17.1米
进深:19.2米
占地面积:328平方米
建筑面积:526平方米



