大豪宅大气场!5款别墅带车库和院子,气派大宅令人拍案叫绝

01




这款别墅更偏向中式风格,线条简约,符合东方传统的留白观念,同时也带有现代流畅的线条,两种风格融入其中,带着一股风流禅意的韵味,与周围景色相互辉映,更有曲径通幽,深深花木之感,堪称山水别墅典范。

02




这款别墅符合现代别墅的冷淡简约的设计理念,里面的布局更是别有通天,色彩的搭配效果意外地融合,没有多余的装饰却意外地大气,充分地展示了这款别墅独一无二的建筑之美,无疑能成为方圆之地的地标性建筑。

03




一眼看到这款别墅就觉得“占尽风情向小园”,这款别墅没有杂乱无章的设计线条,带有一点中式小宅的淡雅和含蓄,但是风格极其明显,过目不忘,另有风情,与其他别墅相比不遑多让,是难得一见的淡雅别墅。

04




这款别墅设计极为考究,带有现代别墅不对称的特点,但是每一个细节都经过精雕细琢,带有独特的古典韵味,一下子抓住人的眼球,十分惊艳,是无可地挑剔的现代大宅。

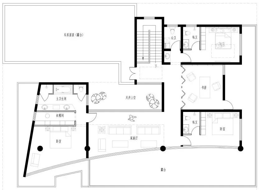
05




这款别墅设计造型赋予空间冷硬的工艺气息和灵动的现代感,整体呈现出平衡的层次感,体块间的留白扩展开房屋领域,整体更为沉稳,是一款很难出错的现代风别墅。


上一篇:美到尖叫!建这5款绝美别墅才不冤枉钱
下一篇:好好干把钱赚,建栋别墅把家还!5款现代别墅美得无敌了!