好好干把钱赚,建栋别墅把家还!5款现代别墅美得无敌了!
第一款
别墅占地:14mX14.8m
占地面积:179.02㎡
建筑面积:315.85㎡
别墅层数:二层



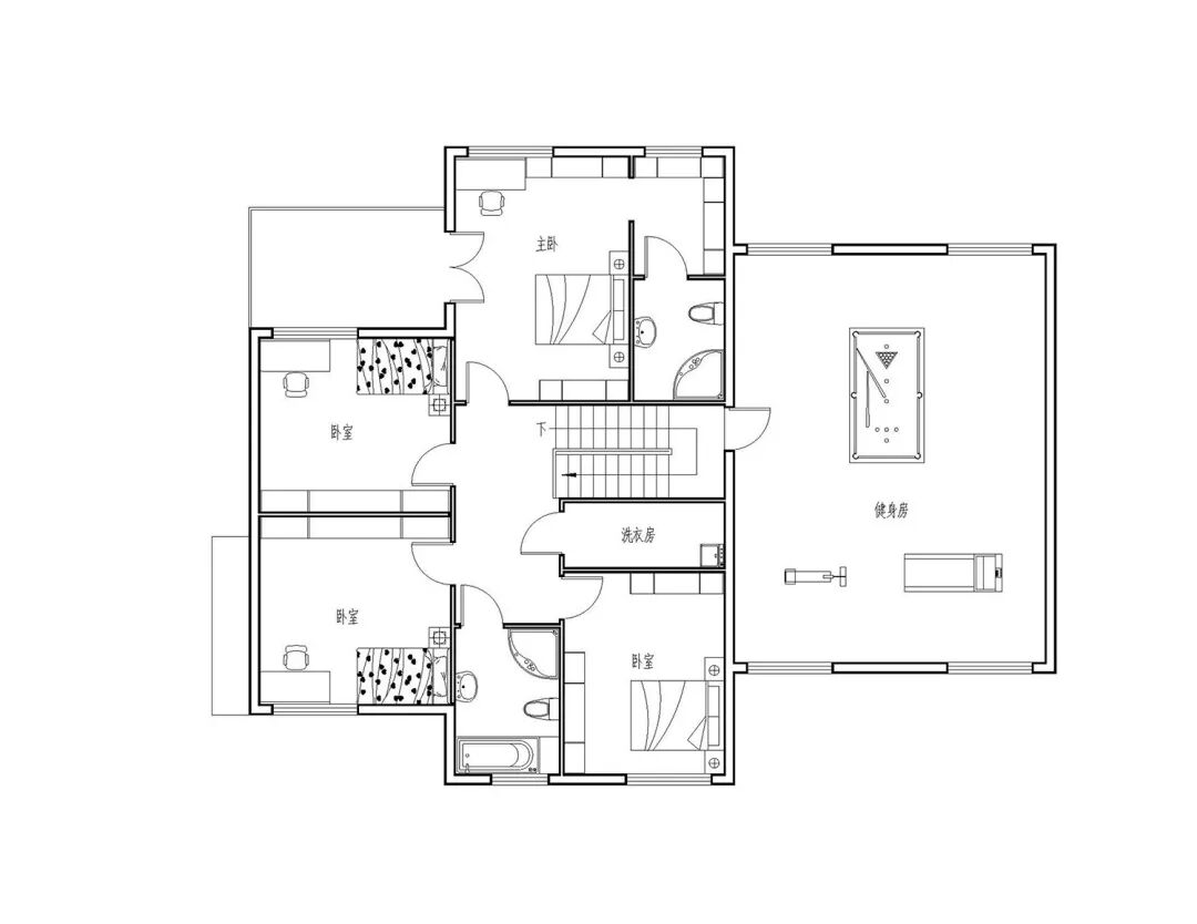
第二款
开间:17.1米
进深:13.5米
占地面积:230平方米
建筑面积:461平方米
层数:2层



第三款
开间:12.9米
进深:11.6米
占地面积:149平方米
建筑面积:376平方米
层数:3层



第四款
面宽:12米
进深:12米
占地面积:144平方米
建筑面积:274平方米
层数:2层



第五款
开间:18米
进深:19.2米
占地面积:345平方米
建筑面积:557平方米
层数:2层




