夏季最佳避暑场所就是轻钢别墅!
七月,正式迎来了夏天。这夏日炎热无比,据说是2015-2019年很可能成为史上最热的五年!你是否早就过着抱西瓜吹空调来避暑的日子呢?如果你住的是轻钢别墅,就知道什么叫冬暖夏凉了。
如果你也想要盖轻钢别墅,不妨看看以下几款美丽之作,看中的话联系我们,只要你有地基,我们就能帮你造房子!

●占地面积:120㎡
●建筑面积:215.96㎡
●结构类型:装配式钢结构
●设计说明:经过改造后的中式美墅,外观上变得色彩丰富,更加符合当代人建筑审美,内部功能根据历来国人居住习惯设计而成,美观与实用并融。
●功能布局:
一层:玄关、客厅、餐厅、厨房、卧室×2、卫生间
二层:主卧(带独卫)、卧室×2、会客厅、储藏室、露台×2、卫生间



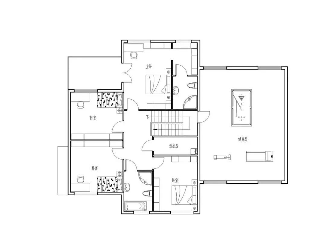
●占地面积:230.85㎡
●建筑面积:461㎡
●结构类型:装配式钢结构
●设计说明:外墙采用金属雕花板与条石结合方式,房间功能设计实用方便,轻钢结构使建筑面积比传统多出四分之一,室内宽敞明亮。
●功能布局:
一层:门厅、客厅、餐厅、厨房、卧室、卫生间、储藏室、车库、工具间
二层:卧室×3、主卧(带独卫+阳台)、健身房、卫生间、洗衣房



●占地面积:134.66㎡
●建筑面积:243.22㎡
●结构类型:装配式钢结构
●设计说明:黄色外墙与蓝青色的彩石金属瓦在午后阳光下散发出热情奔放的气息,阳光透过落地窗与阳台,更是增强房屋通风性与采光性能。
●功能布局:
一层:玄关、客厅、餐厅、厨房、卧室×2、卫生间×2、储物间
二层:卧室×2、主卧(带独卫+书房+衣帽间)、卫生间、家庭室、露台×3
点我咨询留下您的需求,我会第一时间回复您!
点我咨询

