三套中式设计,每一套盖在农村老家都能引人围观,太帅气了
今天为大家整理了三套殿堂级的新中式别墅,喜欢中式的朋友可以参考下。
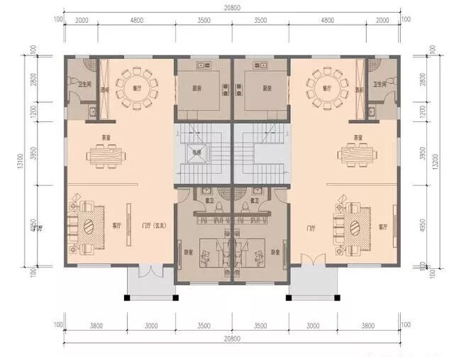
第一套,双拼三层新中式

建筑信息
开间:20.8米
进深:13.2米
层数:三层
结构:装配式建筑钢结构

一层设计功能:1厨房1会客厅1茶室。

二层设计功能:1卧室,1起居室。

三层设计功能:2卧室,1起居室,1棋牌室。
第二套,一层独门独院

建筑信息
开间:23.8米
进深:24.7米
结构:装配式建筑钢结构
层数:一层

设计功能:3卧室,2炕房,1厨房2餐厅,1会客厅,1茶室。
第三套,三层带阁楼新中式

建筑信息
开间:15.8米
进深:13.1米
结构:装配式建筑钢结构
层数:三层

一层设计功能:2卧室,1厨房1餐厅,1会客厅。

二层设计功能:4卧室,1茶室,1会客厅。

三层设计功能:2卧室,1茶室,1露台。

阁楼设计:1储藏室。

