气派阵容!5款自建别墅惊艳出炉,建一栋左邻右舍都沾光
01
开间:21.6米
进深:32米
占地面积:337.9平方米
建筑面积:765.87平方米
别墅层数:三层

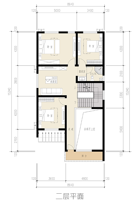
02
面宽:8.5米
进深:15米
占地面积:127平方米
建筑面积:381平方米
别墅层数:三层



03
面宽:8.5米
进深:15米
占地面积:127平方米
建筑面积:381平方米
别墅层数:三层



04
面宽:14m
进深:14.8m
占地面积:179.02㎡
建筑面积:315.85㎡
别墅层数:二层



05
面宽:14米
进深:15.14米
占地面积:210平方米
建筑面积:450平方米
层数:3层




