5款自建别墅霸气侧漏,文化石+景观台,建一栋在农村非常吃香
01

占地尺寸:14米×15.14米
占地面积:210平方米
建筑面积:450平方米
层数:3层




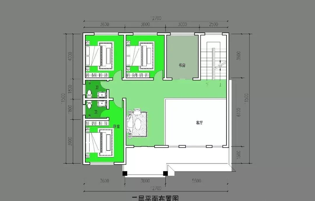
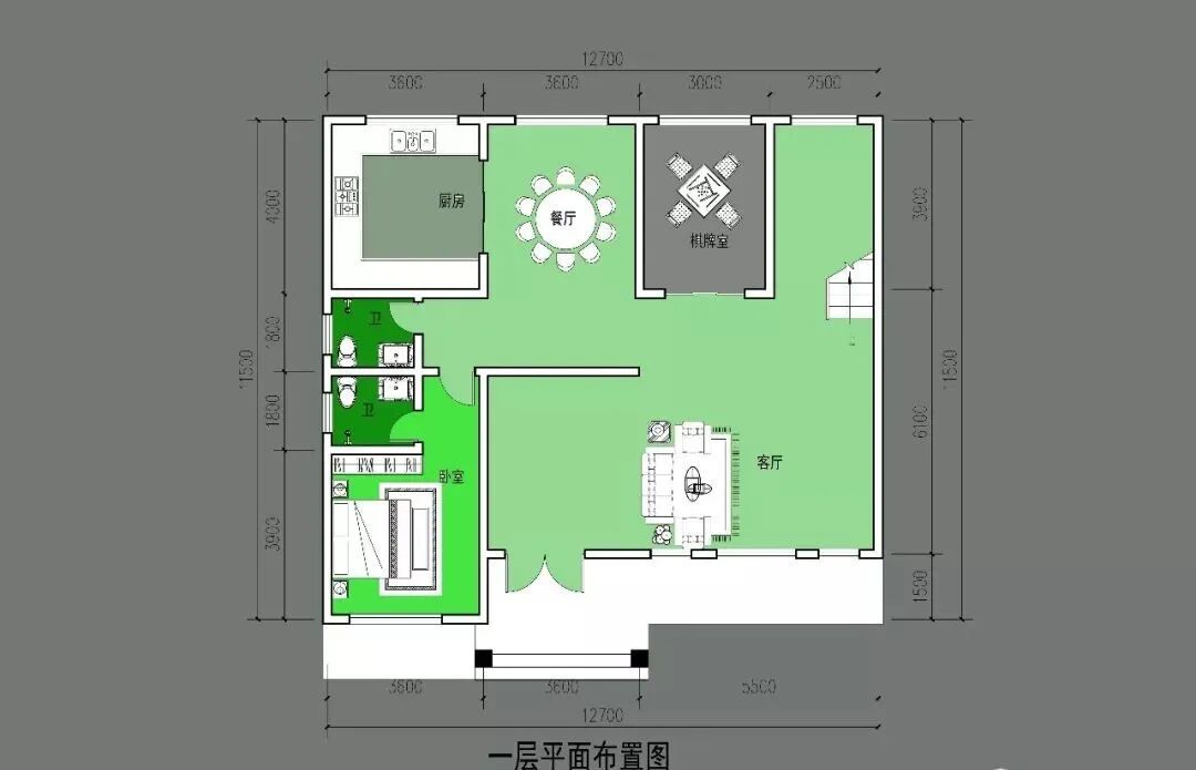
02

占地尺寸:12.7米×11.5米
占地面积:146平方米
建筑面积:400平方米
层数:3层




03

占地尺寸:13.2米×11米
占地面积:182平方米
建筑面积:400平方米
层数:3层




04

占地尺寸:9.2米×11米
占地面积:100平方米
建筑面积:280平方米
层数:3层




05

占地尺寸:13.2米×12.8米
占地面积:169平方米
建筑面积:460平方米
层数:3层





