非同凡响!6款三层别墅气势不凡,建一栋地位遥遥领先
01
占地尺寸:13米×13.8米
占地面积:180平方米
建筑面积:479平方米
层数:3层




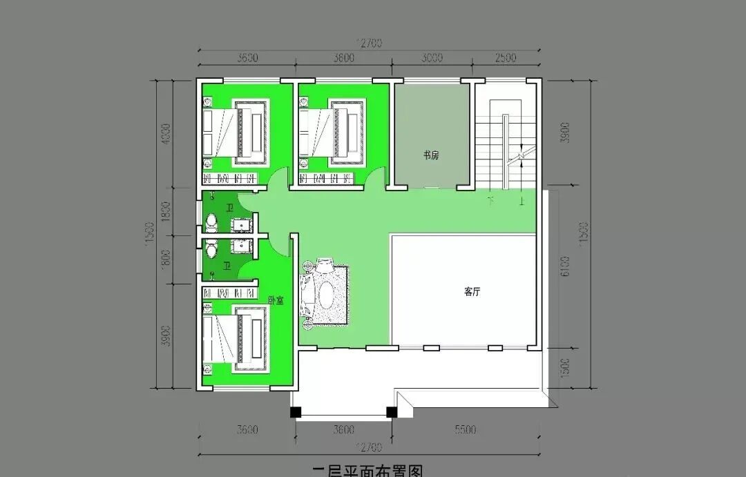
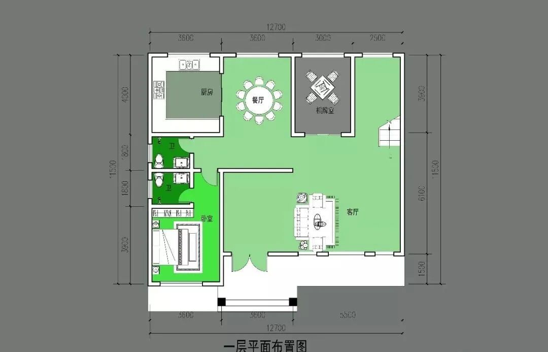
02
占地尺寸:12.7米×11.5米
占地面积:146平方米
建筑面积:400平方米
层数:3层




03
占地尺寸:15.3米×10.8米
占地面积:158平方米
建筑面积:390平方米
层数:3层




04
占地尺寸:13.7米×16.7米
占地面积:228平方米
建筑面积:612平方米
层数:3层




05
占地尺寸:11.3米×12.9米
占地面积:145平方米
建筑面积:410平方米
层数:3层




06
占地尺寸:11.9米×12.5米
占地面积:140平方米
建筑面积:370平方米
层数:3层





