房子那么贵,不如回乡建别墅!5款最适合农村的二层别墅,18万起建

农村别墅不像城里的商品房限制那么多,所以每一栋农村别墅都有自己个性化的需求,今天为大家推荐几款最适合在农村建房的几款别墅,想要有独立厨房,院子或者小宅基地的可以看一下。


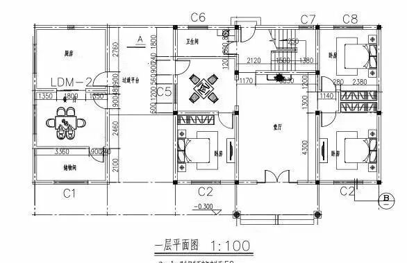
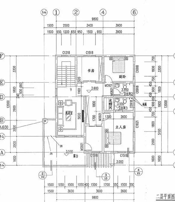
0 1





0 2





0 3








0 4







0 5



上一篇:豪气冲天!5款超级气派的农村别墅,豪华套房+休闲区,全村都惊呆了
下一篇:农村别墅有多美?13款三层别墅空间阔绰,罗马柱+大露台,参观村民踏破门槛