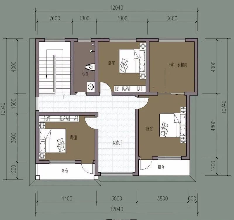
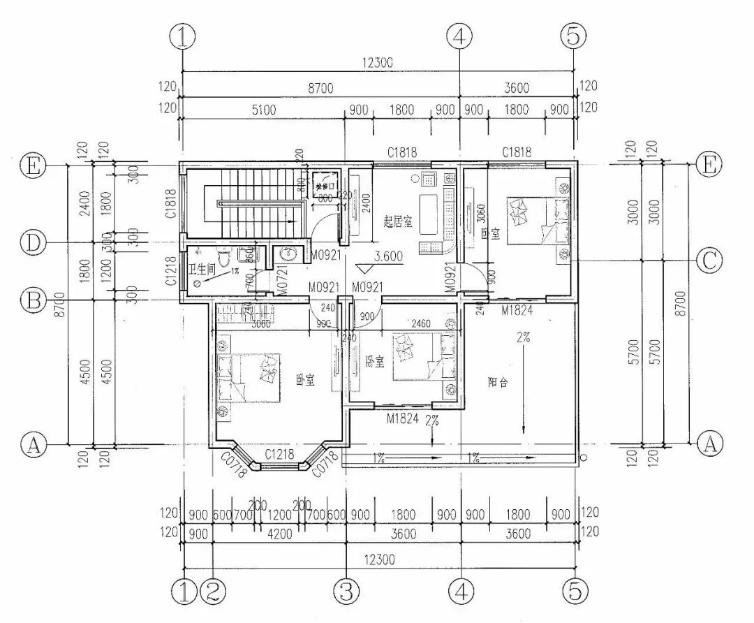
小宅基地也有大排场!7款二层别墅美得不像话!

中国人骨子里深藏着“落叶归根”的情怀,所以越来越多的人喜欢在农村建房,如果宅基地面积不是很大,不能建一栋有排场的别墅实在是一种遗憾,现在为大家介绍7款小面积大气场的高品质别墅,感兴趣的朋友可以收藏起来!




1






2






3







4





5







6







7






上一篇:告别房贷!6款三层别墅有颜有档次,30万也能住豪宅
下一篇:6款30万起中式别墅,浙江老板建了第二栋,建完后,全村人都来贺喜