青山绿水美如画,这些别墅不会差,5款气派别墅百年不过时

开间:8.4米
进深:11.2米
占地面积:99.52平方米
建筑面积:261.38平方米
建筑层数:三层


开间:13.6米
进深:11米
占地面积:155.7平方米
建筑面积:383.95平方米
建筑层数:3层
开间:12.9米
进深:11.6米
占地面积:149平方米
建筑面积:376平方米
层数:2层



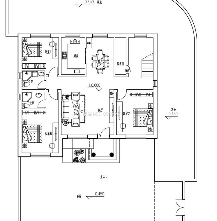
开间:13.3米
进深:11.7米
占地面积:155平方米
建筑面积:280平方米

开间:12.2米 进深:10.8米 占地面积:134.09平方米 建筑面积:260.18平方米 建筑层数:2层 屋顶形式:坡屋顶 |


版权说明:本网站部分转载文章,版权归原作者所有,如涉及作品内容、版权和其他问题,请与本网联系,我们将在第一时间删除内容!

