农村有房就是好!大露台带车库,6款现代风户型真让人心动
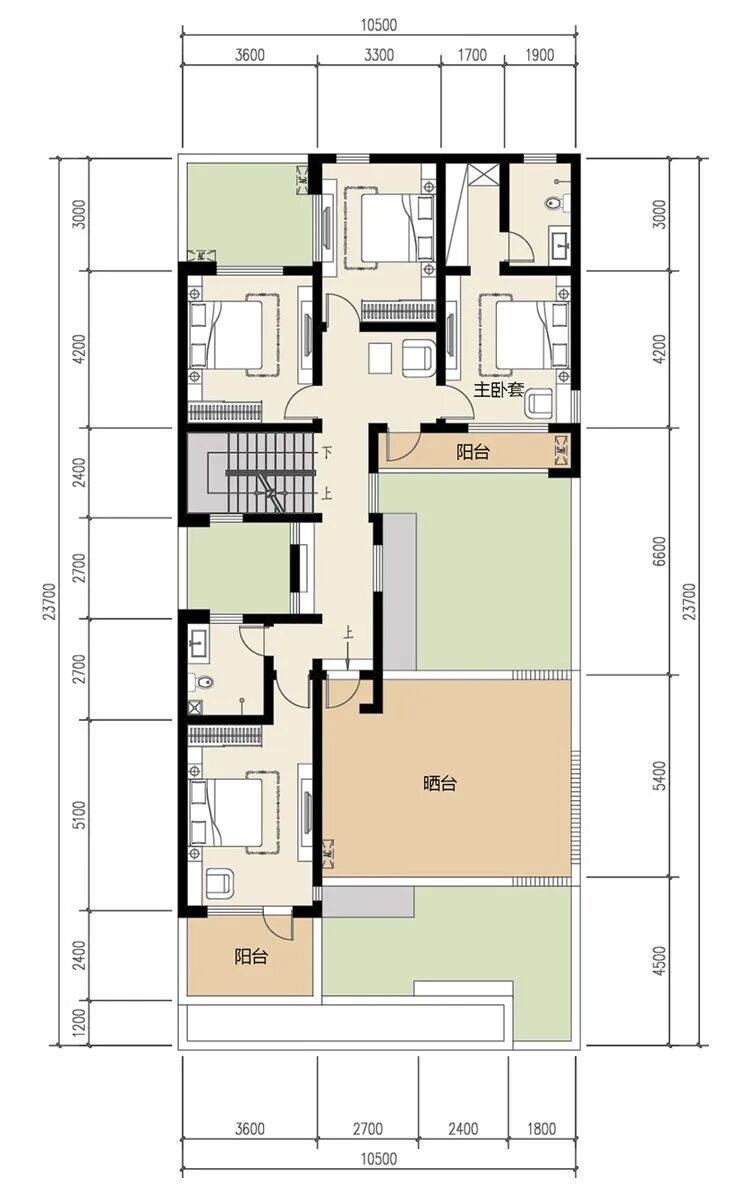
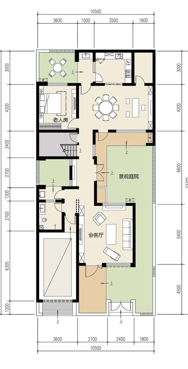
开间:10.5米
进深:23.7米
占地面积:248平方米
建筑面积:325平方米
层数:两层



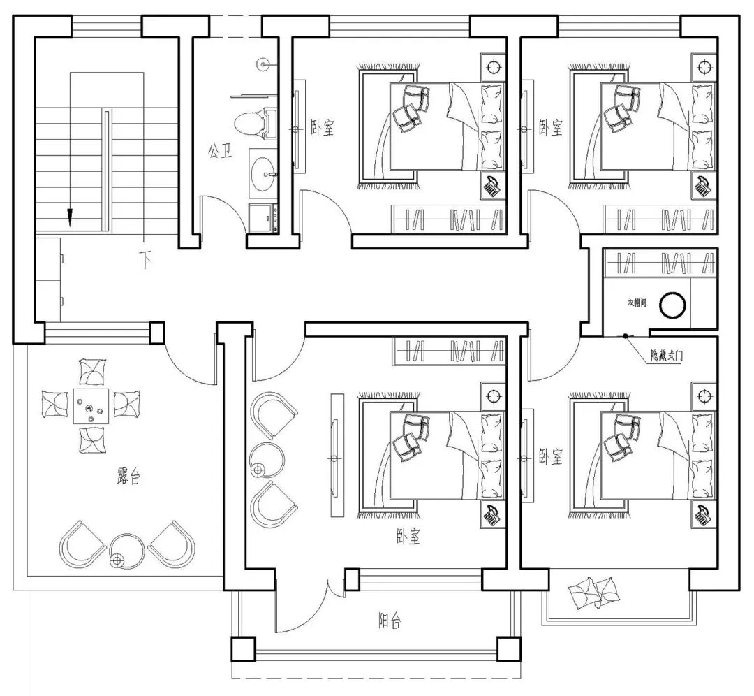
开间:11.7米
进深:17.8米
占地面积:208平方米
建筑面积:256平方米
层数:2层
屋顶形式:坡屋顶

开间:12.2米
进深:5.4米
建筑面积:154平方米
建筑层数:二层

开间:8.3米
进深:13.8米
建筑面积:257平方米
建筑层数:三层

开间:12.4米
进深:9.8米
建筑面积:243平方米
层数:二层


开间:9米
进深:10.8米
占地面积:97平方米
建筑面积:324平方米
层数:3层


版权说明:本网站部分转载文章,版权归原作者所有,如涉及作品内容、版权和其他问题,请与本网联系,我们将在第一时间删除内容!

