震撼来袭!6款平屋顶轻钢别墅款款都大气
自建房大致分为坡屋顶和平屋顶,到底是用坡屋顶好还是平屋顶好,这是一个备受争议的问题。在北方乡村平屋顶较为常见,大家选择平屋顶,关键就在于平屋顶的实用性较强,既提供了粮食农作物的晾晒场所,又兼顾休闲娱乐的露台作用,而且平顶施工简单,主体造价也相对低一些,非常经济实用。今天为大家准备了6款平屋顶美墅户型:

简约风格建筑外观干净利落,省去了繁杂的装饰线条,使外观极具现代感。内部布局合理,充分利用空间又不显局促,大面积的挑空客厅通透宽敞。


美墅基本信息
占地尺寸:16.8米X12米
建筑面积:338平方米
主体结构:装配式钢结构
一层设有:起居室、厨房、餐厅、储藏室、公用卫生间、2个卧室,主卧带有独立卫生间。
二层设有4个卧室,其中主卧带有独立卫生间和衣帽间,可根据需要将其中一个房间设为书房。

上露台下车库的经典组合,美观又实用;选用欧式常用的麦牙色搭配红砖,整体风格简约经典。


美墅基本信息
占地尺寸:17.7米X9.7米
建筑面积:300平方米
主体结构:装配式钢结构
一层设有:车库、入门玄关、客厅、餐厅、厨房、2卫生间、洗衣间,2个卧室。
二层设有:休闲娱乐室、储藏室、2个卫生间、4个卧室和露台。

整体构造简洁流畅,契合了现代建筑的简约美学,文化石的运用,让房子更有质感。


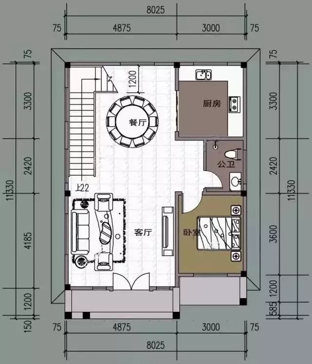
美墅基本信息
占地尺寸:8.03米X11.33米
建筑面积:215.2平方米
主体结构:装配式钢结构
一层设有:客厅、餐厅、厨房、卫生间、卧室。
二层设有:起居室、卫生间、衣帽间、4个卧室和阳台。

这套平屋顶别墅,摒弃那些冗长复杂的造型装饰,将设计的元素、色彩、原料简化,非常注重居室空间的布局与实用功能的完美结合。


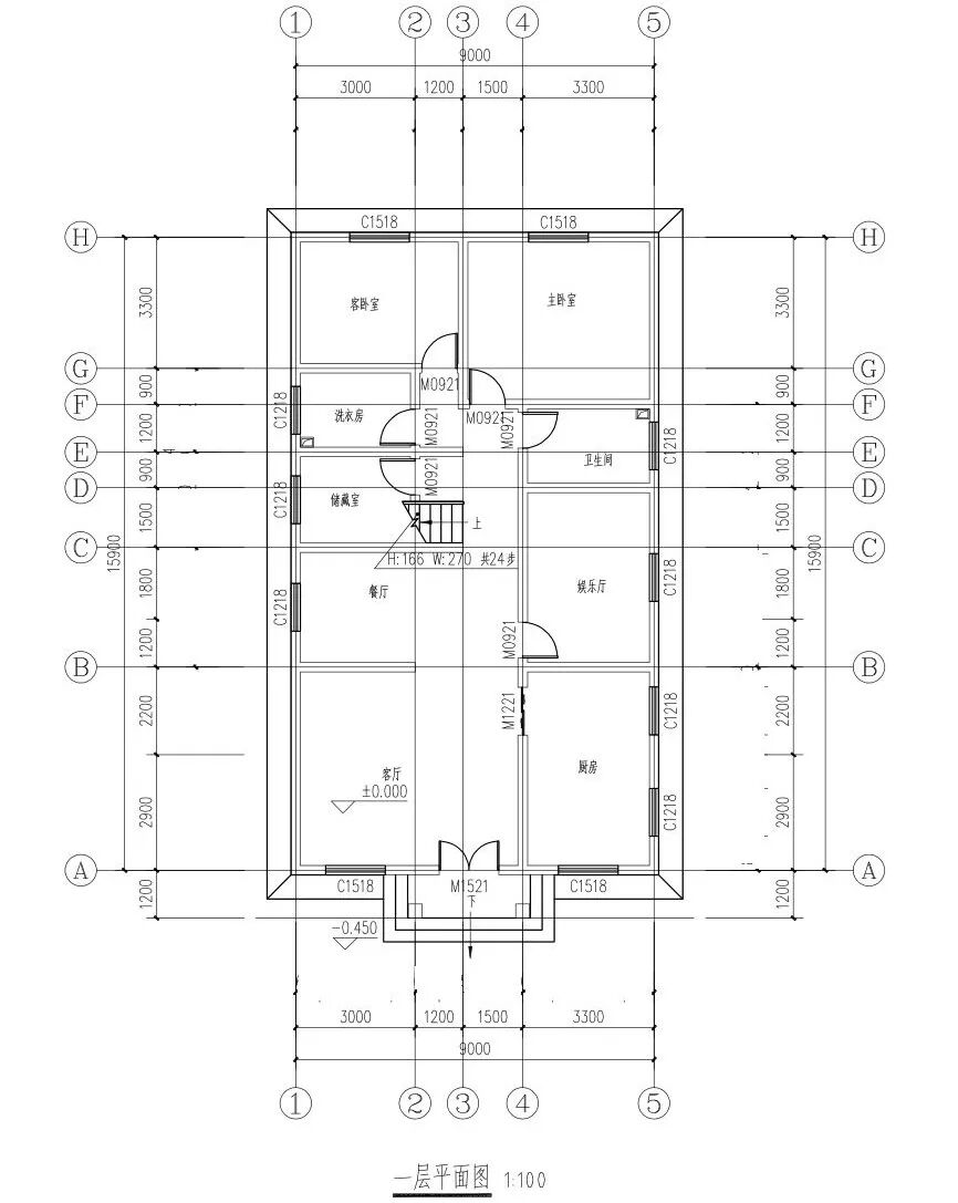
美墅基本信息
占地尺寸:93米X15.9米
建筑面积:274平方米
主体结构:装配式钢结构
一层设有:客厅、餐厅、娱乐厅、厨房、洗衣房、储藏室和卧室。
二层设有:起居室、书房、儿童房、卫生间、主卧和露台。

浅色外墙加上白色线条的装饰,给人一种清雅的感觉。



美墅基本信息
占地尺寸:12米X9米
建筑面积:258平方米
主体结构:装配式钢结构
一层设有:客厅、厨房、餐厅、卫生间、车库。
二层设有:3个卧室、2个卫生间和阳台。
三层设有:2个卧室、2个卫生间和个露台。

外墙低调的配色使整栋别墅看起来沉稳、端庄。


美墅基本信息
占地尺寸:15.3米X10.8米
建筑面积:319.8平方米
主体结构:装配式钢结构
一层设有:堂屋、客厅、厨房、餐厅、车库、卫生间和2个卧室。
二层设有:起居室、阳光房、书房、3个阳台、2个卫生间和3个卧室。
扫码了解更多建房行业资讯

