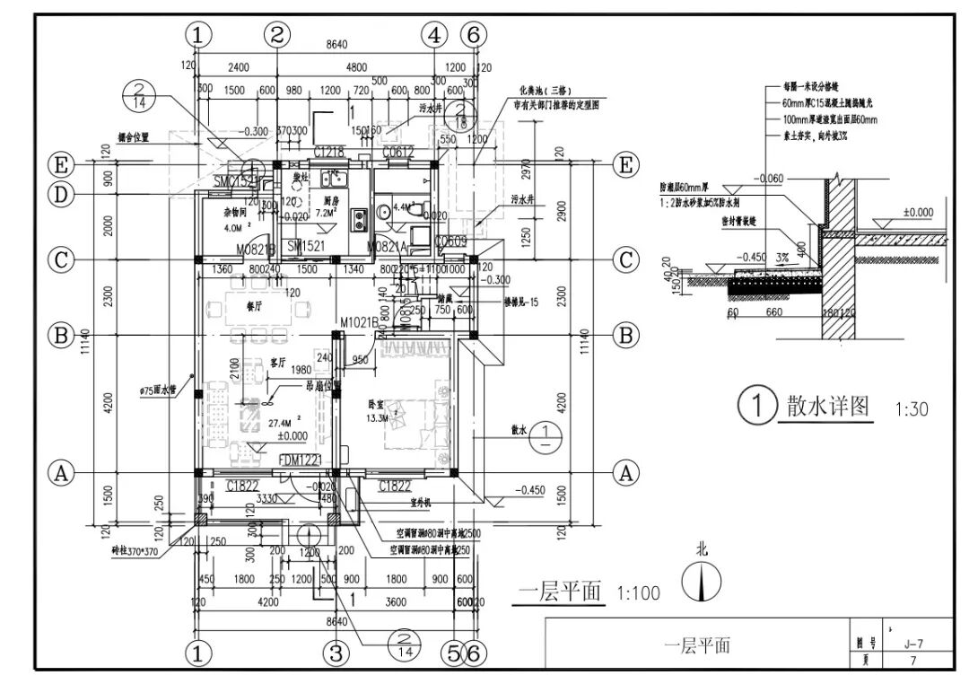
霸气侧漏!这11款经典别墅是最理想的住宅
●占地面积:134.66㎡
●建筑面积:243.22㎡
●结构类型:装配式轻钢结构
●设计说明:黄色外墙与青色的彩石金属瓦在午后阳光下散发出热情奔放的气息,阳光透过落地窗与阳台,更是增强房屋通风性与采光性能。
●功能布局:
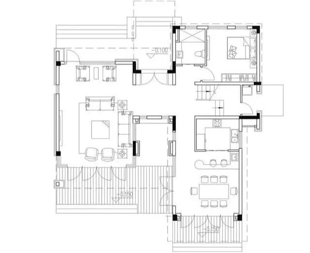
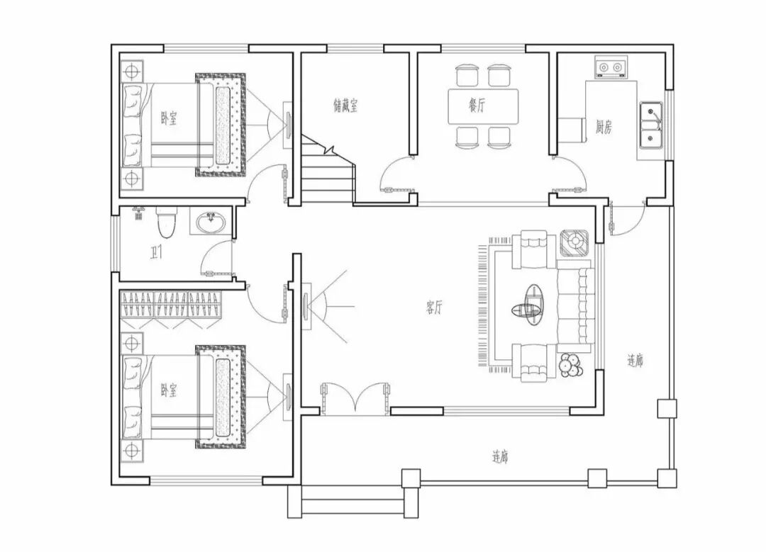
一层:玄关、客厅、餐厅、厨房、卧室×2、卫生间×2、储物间;
二层:卧室×2、主卧(带独卫+书房+衣帽间)、卫生间、家庭室、露台×3。
●占地面积:230.85㎡
●建筑面积:461㎡
●结构类型:装配式轻钢结构
●设计说明:外墙采用金属雕花板与条石结合方式,房间功能设计实用方便,轻钢结构使建筑面积比传统多出四分之一,室内宽敞明亮。
●功能布局:
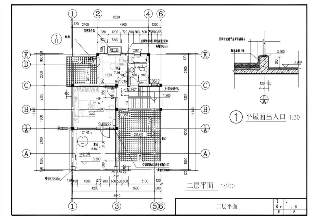
一层:门厅、客厅、餐厅、厨房、卧室、卫生间、储藏室、车库、工具间;
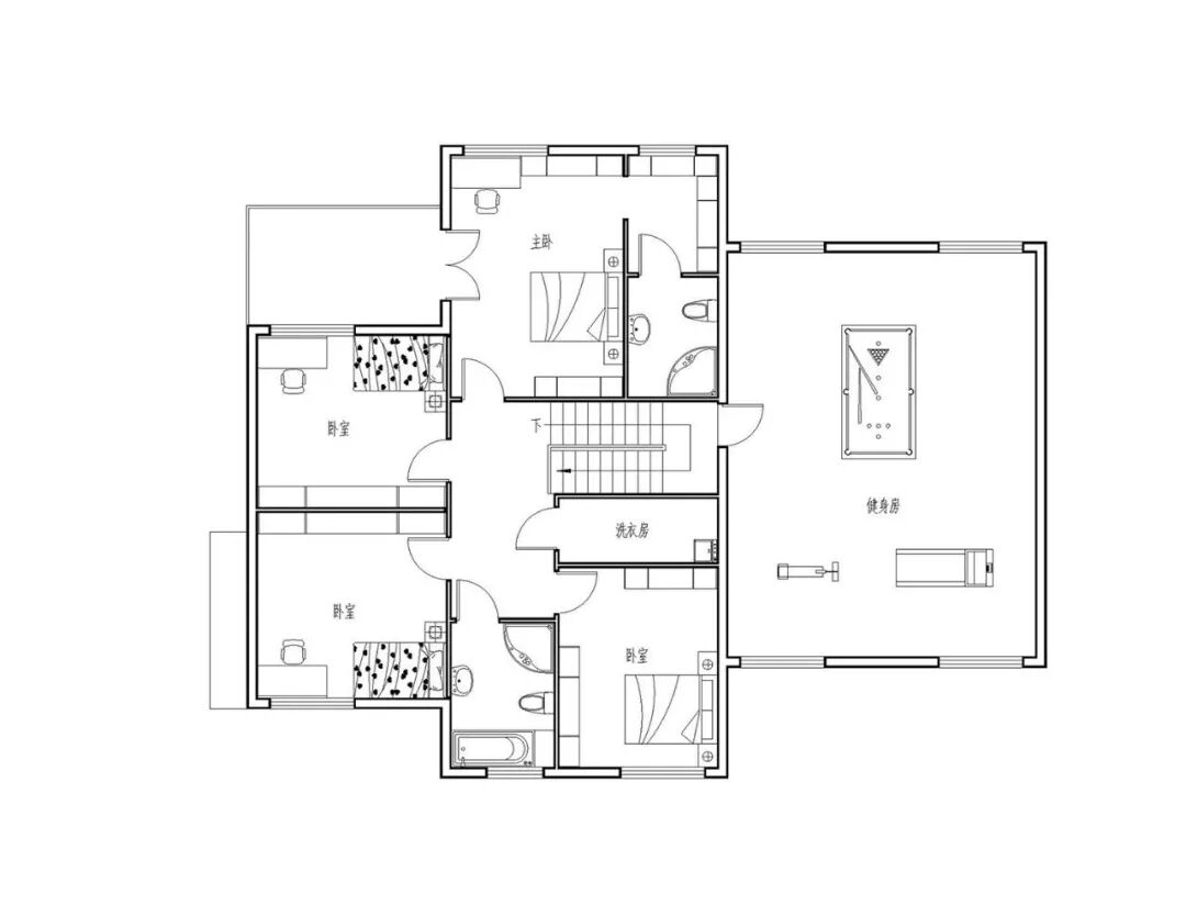
二层:卧室×3、主卧(带独卫+阳台)、健身房、卫生间、洗衣房。
●占地面积:109.28㎡
●建筑面积:213.09㎡
●结构类型:装配式轻钢结构
●设计说明:造型独特,挑高门廊扩展外部空间,天然石材与人工制造金属雕花板完美结合。
●功能布局:
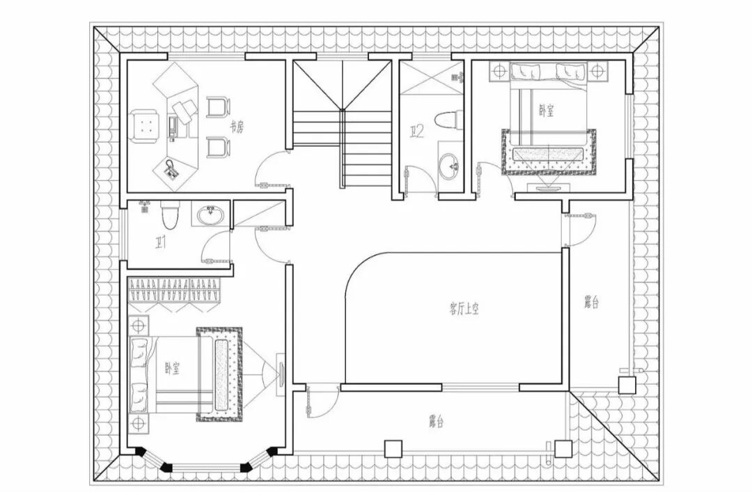
一层:门廊、客厅、餐厅、厨房、卧室、卫生间、储物室;
二层:豪华套房(带书房+卫生间+露台)、主卧(带独卫)×2、书房、卧室、储物间。
●占地面积:75.1㎡
●建筑面积:119.7㎡
●结构类型:装配式轻钢结构
●设计说明:该栋美墅色块分明、简约朴实,接近中式乡村建筑风格,给人温馨舒适之感。
●功能布局:
一层:客厅、厨房、餐厅、卧室、卫生间、储物间、杂物间;
二层:卧室、书房、卫生间、露台。
●占地面积:120㎡
●建筑面积:215.96㎡
●结构类型:装配式轻钢结构
●设计说明:经过改造后的中式美墅,外观上变得色彩丰富,更加符合当代人建筑审美,内部功能根据历来国人居住习惯设计而成,美观与实用并融。
●功能布局:
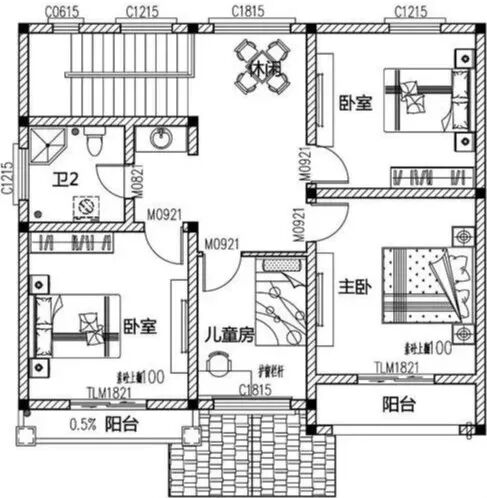
一层:玄关、客厅、餐厅、厨房、卧室×2、卫生间;
二层:主卧(带独卫)、卧室×2、会客厅、储藏室、露台×2、卫生间。
●占地面积:150㎡
●建筑面积:435㎡
●结构类型:装配式轻钢结构
●设计说明:细节之处体现品味,米黄色外墙与深红色屋顶搭配,凸显更强的空间立体感。房屋功能齐全,车库、门廊、娱乐区、书房、老人房等应有尽有。
●功能布局:
一层:门厅、客厅、餐厅、厨房、车库、老人房、卫生间;
二层:主卧(带独卫)、卧室×2、会客厅、书房、卫生间、阳台;
三层:卧室×3、卫生间、家庭厅、娱乐厅、露台、阳台。
●占地面积:204㎡
●建筑面积:266.94㎡
●结构类型:装配式轻钢结构
●设计说明:外墙采用米黄色真石漆、咖啡色金属雕花板,屋面瓦采用抗损抗裂、保温隔热的褐色彩石金属瓦,整体搭配凸显大自然原木风情。
●功能布局:
一层:玄关、客厅、餐厅、厨房、卧室、卫生间;
二层:卧室(带独卫)、次主卧(带衣帽间+阳台);
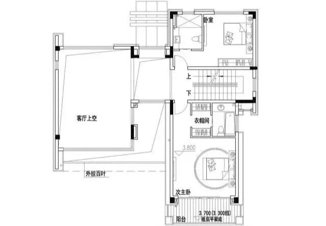
三层:主卧(带独卫+衣帽间+阳台)、大露台。
●占地面积:190㎡
●建筑面积:205㎡
●结构类型:装配式轻钢结构
●设计说明:二层颜色为黄色铝塑板与上下分层装饰,空间感增强,二层卧室配有阳台、落地窗,空气流通顺畅。
●功能布局:
一层:玄关、客厅、餐厅、厨房、卧室、卫生间、车库;
二层:卧室×4、阳台×2、卫生间。
●占地面积:190㎡
●建筑面积:342.5㎡
●结构类型:装配式轻钢结构
●设计说明:该栋堪称豪华美墅,建筑风格中式元素与欧式相结合,超大露台与室外休闲区设计,休闲娱乐功能在这栋美墅上表现的淋漓尽致。
●功能布局:
一层:门厅、客厅、厨房、餐厅、卫生间、储物间、休闲区、主卧(带独卫)、客房×2;
二层:豪华主卧×4(带独卫)、客厅、露台×2。
●占地面积:108㎡
●建筑面积:203㎡
●结构类型:装配式轻钢结构
●设计说明:L型连廊的设计给主人家提供更多装饰想象,同时扩展了外部空间,朱红色与黄色墙板分层拼接呈现出精致美观之感,白色窗边使房间线条感增强。
●功能布局:
一层:外廊、客厅、餐厅、厨房、卧室×2、卫生间、储藏室;
二层:卧室×2、主卧(带独卫)、露台×2、卫生间。
●占地面积:168㎡
●建筑面积:239㎡
●结构类型:装配式轻钢结构
●设计说明:美墅外观典雅别致,清新自然的米黄有机涂料与条石墙材结合,藏青色彩石金属瓦在多雨的季节不仅美观,而且降噪,门窗使用防辐射玻璃,调节室内温度的同时,起到更好的装饰效果。
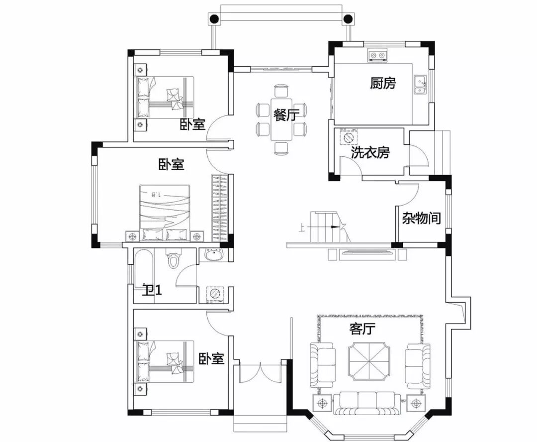
●功能布局:
一层:玄关、客厅、餐厅、厨房、洗衣房、杂物间、卧室×3、卫生间;
二层:主卧(带独卫+衣帽间)、次卧、露台、阳台、卫生间。

