疯狂点赞!这4款大气别墅盖一栋邻居都眼红
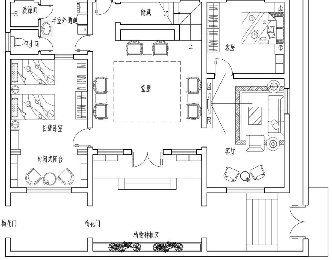
开间:16米 进深:20米 占地面积:266平方米 建筑面积:800平方米 建筑层数:3层
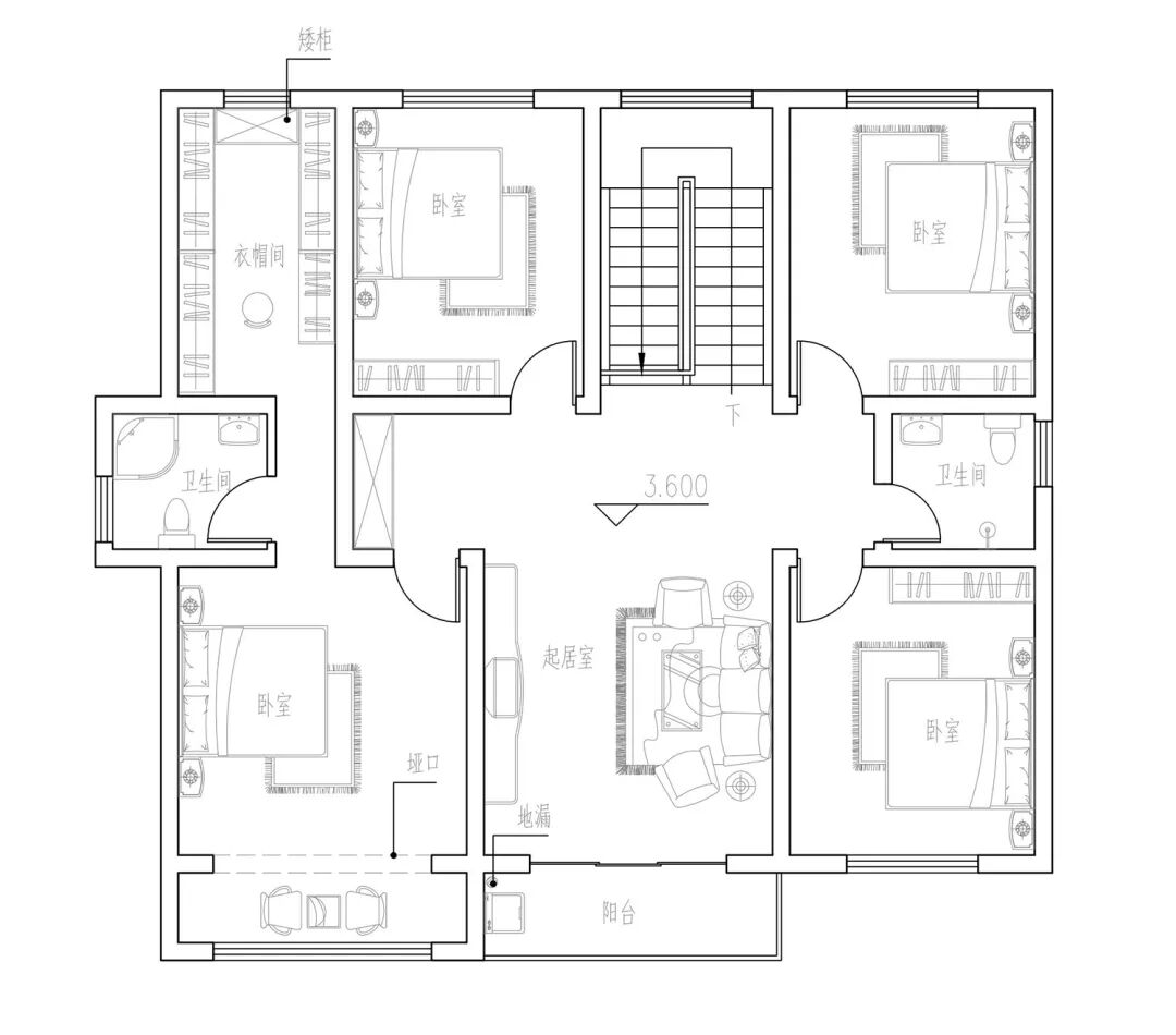
开间:11.5m 进深:13.4m 建筑面积:255㎡ 占地面积:140㎡
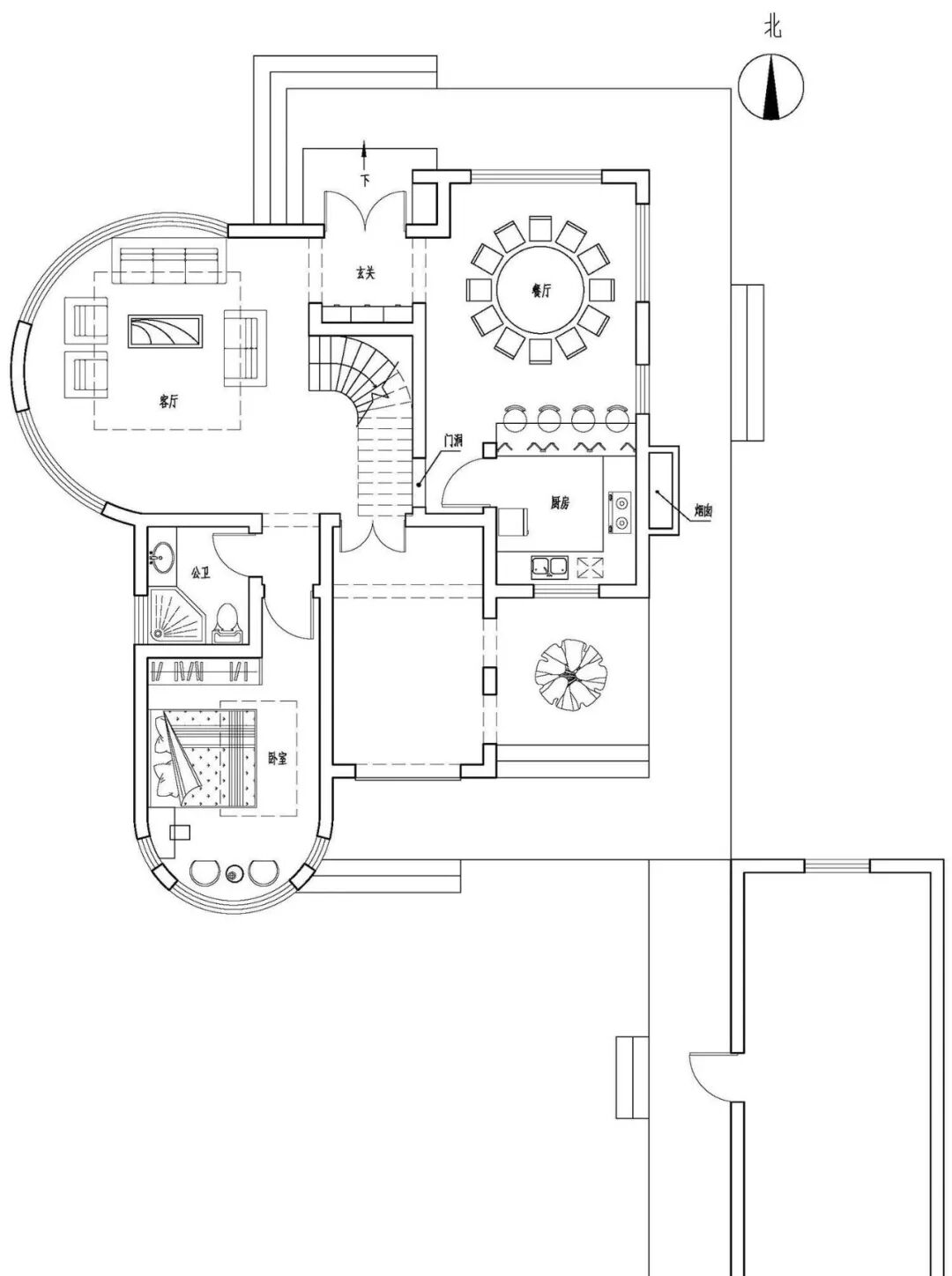
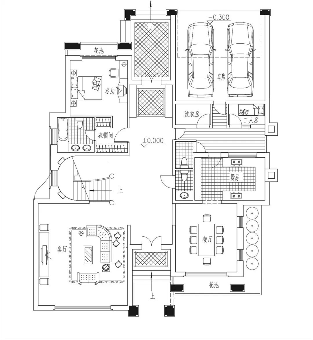
开间:12m
进深:11.7m
建筑面积:394㎡
层数:三层
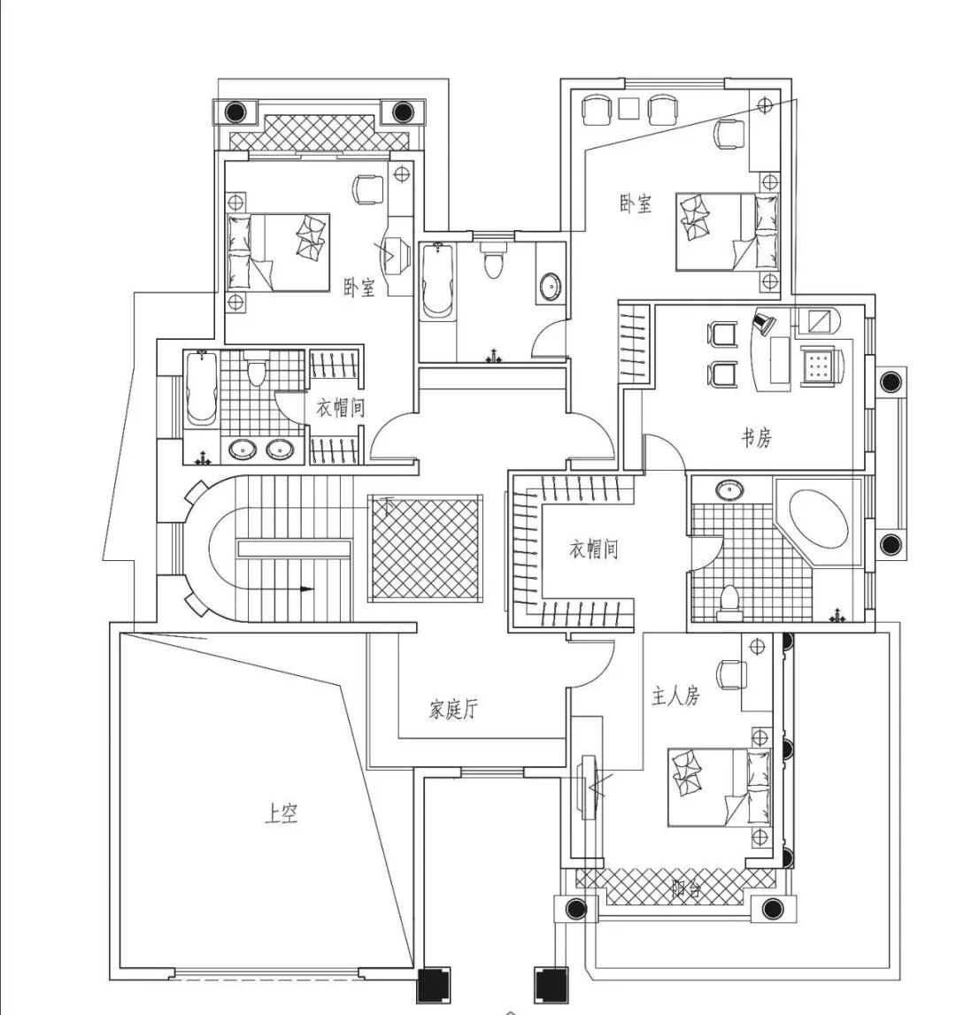
开间:13.4米
进深:9.2米
占地面积:120平方米
建筑面积:221平方米
层数:2层
屋顶形式:坡屋顶

