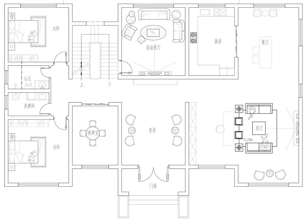
还做房奴?不如回家盖别墅!这7款别墅是每个成功人士的梦想
户型一

开间:19.9米
进深:12.2米
占地面积:240平方米
建筑面积:434平方米
层数:2层
户型二


开间:18.24米
进深:10.68米
占地面积:220平方米
建筑面积:508平方米
建筑层数:3层
户型三


开间:8.5米
进深:11.2米
占地面积:117.2平米
建筑面积:226.8平米
楼层:3层
户型四


开间:24.1米
进深:12.8米
地下面积:212平方米
地上面积:689平方米
建筑层数:3层
户型五


开间:18.6米
进深:11.7米
占地面积:217.62平方米
建筑面积:277.8平方米
层数:三层
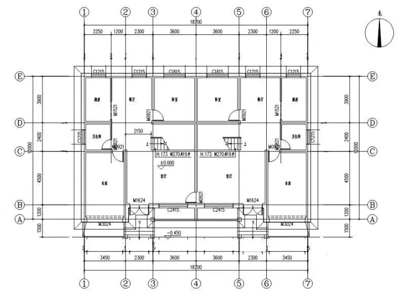
户型六


开间:18.7米
进深:12米
占地面积:218.69平方米
建筑面积:408平方米
建筑层数:2层
户型七


开间:32米
进深:16米
占地面积:531.36平方米
建筑面积:1154.16平方米
层数:4层
点我咨询留下您的需求,我会第一时间回复您!
点我咨询

