看到的人都在偷笑!这8款豪派自建别墅建一栋人人都羡慕
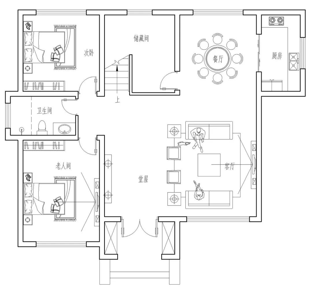
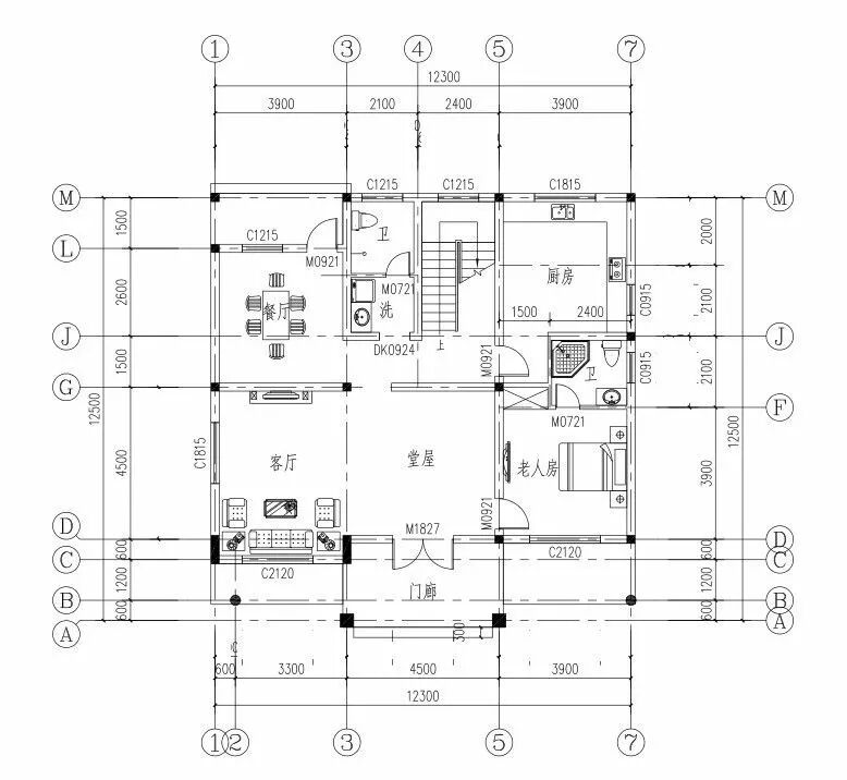
开间:12.3米
进深:12.5米
占地面积:153.75平方米
建筑面积:382.71平方米
建筑高度:12.1米(含屋顶)
层数:3层
开间:12.7米
进深:12.6米
占地面积:136.52平方米
建筑面积:362.89平方米
开间:10.6米
进深:9.8米
占地面积:97平方米
建筑面积:194平方米
层数:两层

进深:13.47米
占地面积:173.53平方米
建筑面积:448.52平方米
层数:三层
主体结构:框架结构
屋顶形式:坡屋顶
开间:11.10米
进深:15.27米
占地面积:118.42平方米
建筑面积:252.2平方米
建筑高度:12.9米
楼层:三层
开间:12.3米
进深:10.8米
建筑面积:262平方米
层数:二层
屋顶形式:坡屋顶
开间:14.3米
进深:12米
建筑面积:271平方米
层数:二层
屋顶形式:坡屋顶
点我咨询留下您的需求,我会第一时间回复您!
点我咨询

