美到无法无天!这6种轻钢别墅在朋友圈刷屏,惊艳众人
<<向右滑动<<
基本信息
占地尺寸:14.4m(开间)*10.9m(进深)
占地面积:134.05㎡
建筑面积:259.47㎡
主体结构:装配式钢结构
平面布局:
一层:客厅、餐厅、厨房、卧室×2、主卧(带独卫)、卫生间;
二层:卧室×2、主卧(带独卫)、卫生间、起居室、露台×2、茶室。
<<向右滑动<<
基本信息
占地尺寸:13.2m(开间)*11m(进深)
建筑面积:348㎡
主体结构:装配式钢结构
平面布局:
一层:玄关、客厅、餐厅、卧室、卫生间、储物间、柴火房、储藏室;
二层:主卧(带独卫+衣帽间)×2、活动室、露台×2;
三层:主卧(带独卫+衣帽间)×2、书房、露台。
<<向右滑动<<
基本信息
占地尺寸:12.2m(开间)*14m(进深)
建筑面积:414.96㎡
占地面积:143.7㎡
主体结构:装配式钢结构
平面布局:
一层:复式客厅,厨房、餐厅、老人房带卫生间、次卧、公卫;
二层:2间带卫生间的主卧、1间次卧和一个卫生间;
三层:主卧室附衣帽间和卫生间,2次卧,屋顶露台。
<<向右滑动<<
基本信息
占地尺寸:13m(开间)*12.3m(进深)
占地面积:150㎡
建筑面积:267㎡
主体结构:装配式钢结构
平面布局:
一层:餐厅、厨房、客厅、卧室x3、卫生间x2;
二层:卧室×3、客厅x2、卫生间x2、书房、阳台x2。
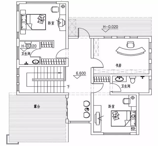
<<向右滑动<<
基本信息
占地尺寸:11.5m*10.5m
占地面积:137.86㎡
建筑面积:256.9㎡
主体结构:装配式钢结构
平面布局:
一层:餐厅、厨房、客厅、卧室x2、卫生间;
二层:卧室×3、起居室、卫生间x2、书房、阳台。
<<向右滑动<<
基本信息
占地尺寸:11.1m*10.6m
占地面积:120平方米
建筑面积:233㎡
建筑层高:10.6m
主体结构:装配式钢结构
平面布局:
一层:厨房、餐厅、客厅、卧室x2、卫生间;
二层:卧室x4,卫生间、客厅、书房、露台。
扫码了解更多建房行业资讯

