6款现代风别墅,栋栋美得冒泡,你最喜欢哪栋?
开间:17.6米
进深:14米
占地面积:232平方米
建筑面积:468平方米
层数:2层

开间:12.6米
进深:10.1米
占地面积:127平方米
建筑面积:350平方米
层数:三层


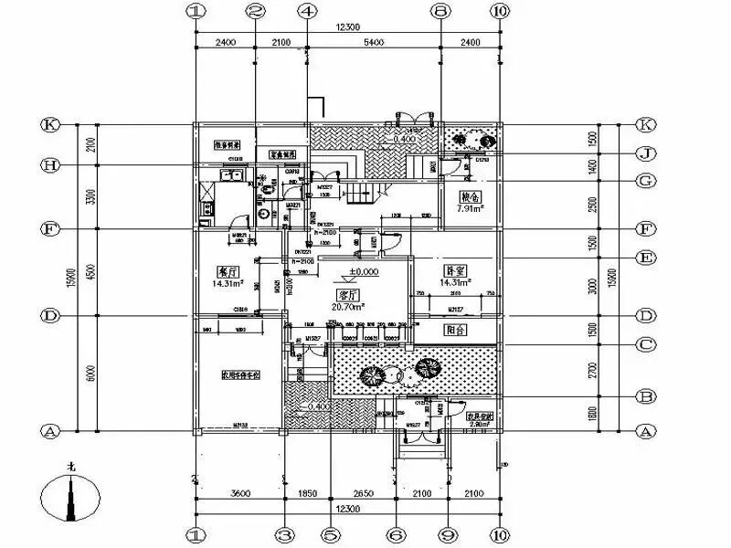
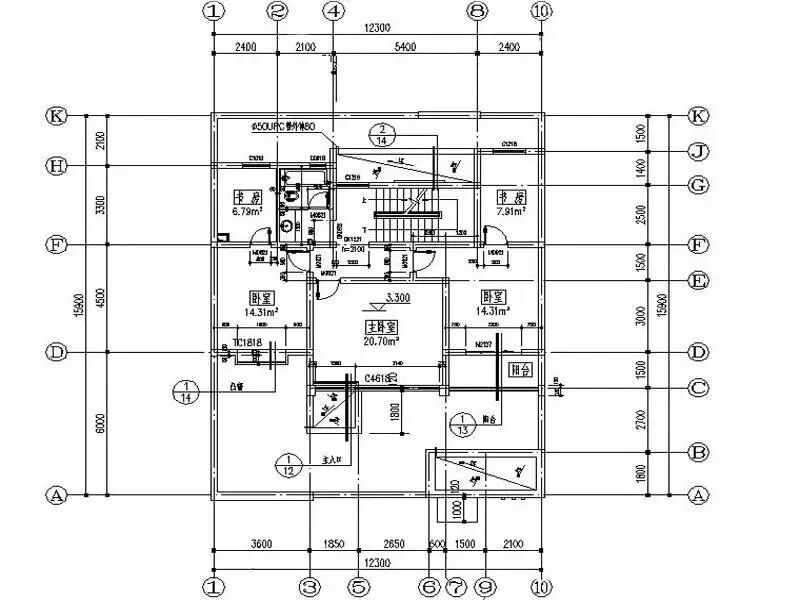
占地尺寸:12.3米X15.9米
建筑面积:238平
一层: 客厅、餐厅、厨房、卧室、卫生间、车库、
二层:3卧室、2卫生间、2书房、2阳台;
三层:储物间、晾晒台。

占地尺寸:9.8米X12.5米
建筑面积:220平方米
一层: 客厅、餐厅、厨房、卫生间、储物间、车库;
二层:3个卧室卫生间、露台。

开间:15.00米
进深:10.00米
占地面积:145.12平方米
建筑面积:334.15平方米
开间:13.2米
进深:11.4米
结构形式:框架结构
占地面积:139.04平方米
建筑面积:302.26平方米


