许你一个世外桃源!8款中式轻钢庭院,款款美不胜收
"每逢佳节倍思亲"!马上就到中秋小长假了,很多人估计都已经买好了回乡的车票,是否已经是归心似箭了呢?
故乡,永远是一个人心底最温柔的那么色彩,是童年夏天里池塘莲子生生的绿,也是秋天里麦田一片灿烂的黄,是可以让你暂时“马放南山解甲归田”放松的地方!
随着年岁增长,老家的房子是不是也开始岌岌可危,正好可以建中式小庭院!给自己留下一个可以回去的地方!8款中式庭院,附带图纸,总有一款能击中你心底最柔软的地方~
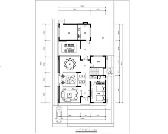
房屋设计:5房3厅2卫
建筑面积:293.5㎡
占地面积:9m*15m

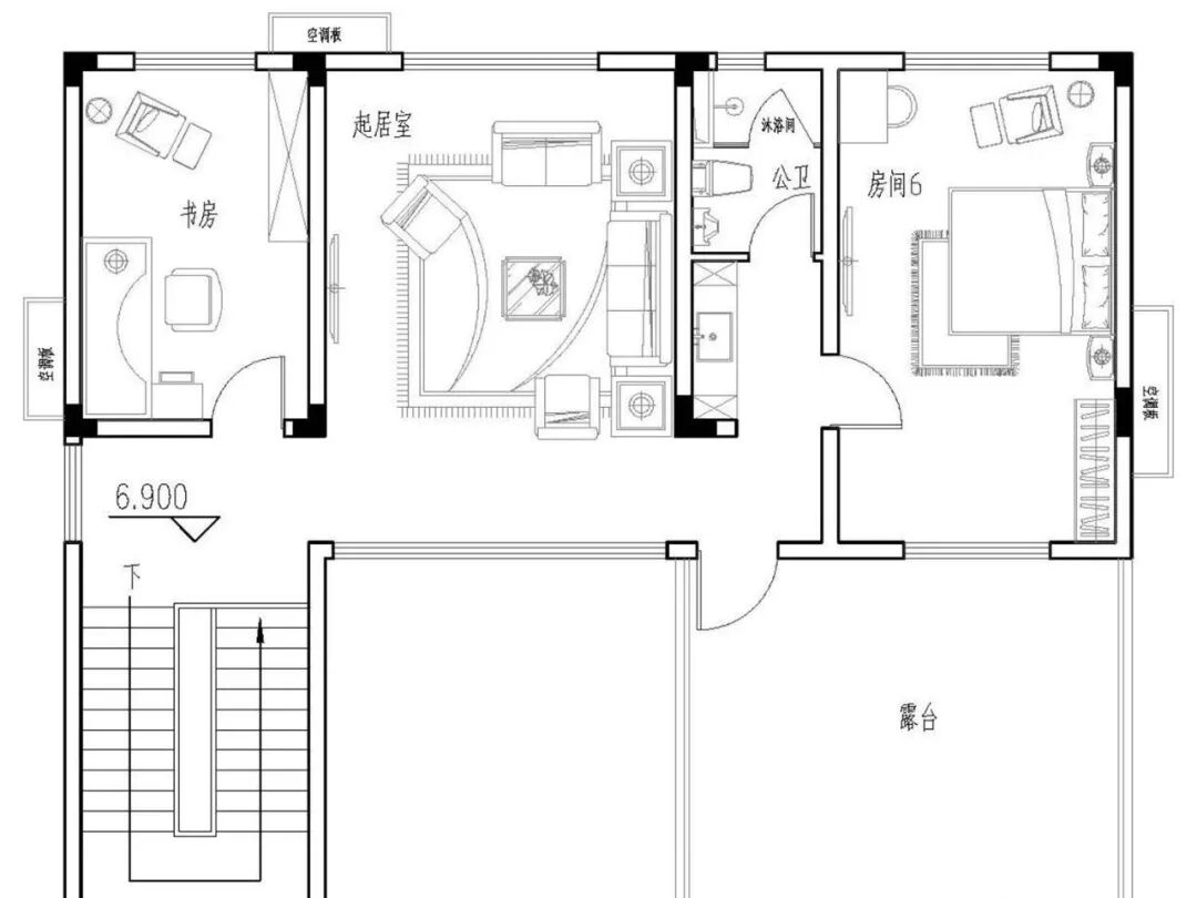
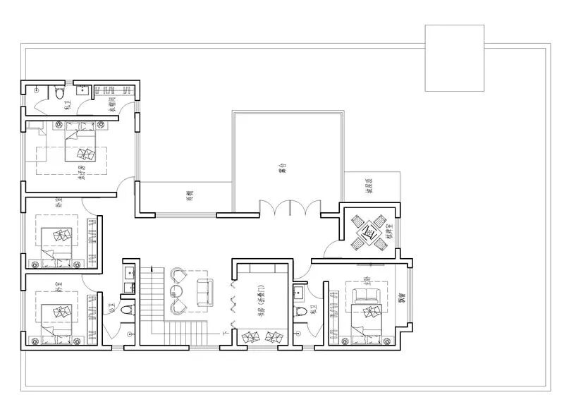
房屋设计:6室3厅3卫
建筑面积:353.15m²
占地面积:12m*20m
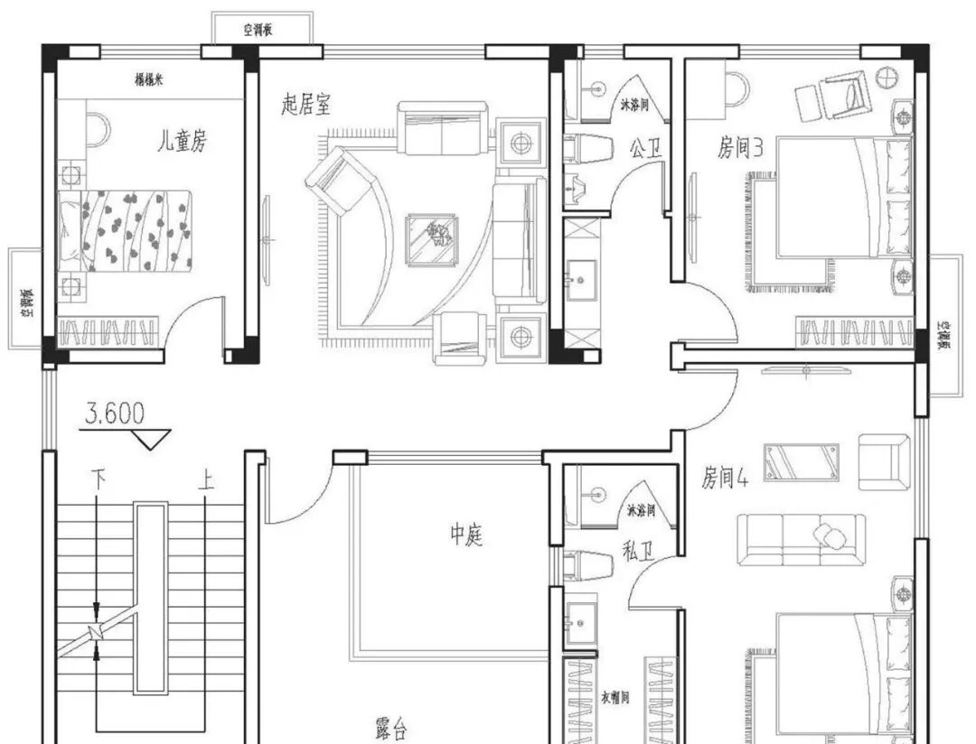
房屋设计:5室3厅5卫
建筑面积:294.33m²
占地面积:16m*16m
建筑面积:185.6㎡
占地面积:13m*13m
开间:26米
进深:17米
建筑面积:363平方米
建筑层数:2层
开间:13.10m
进深:10.95m
建筑面积:358㎡
占地面积:134㎡
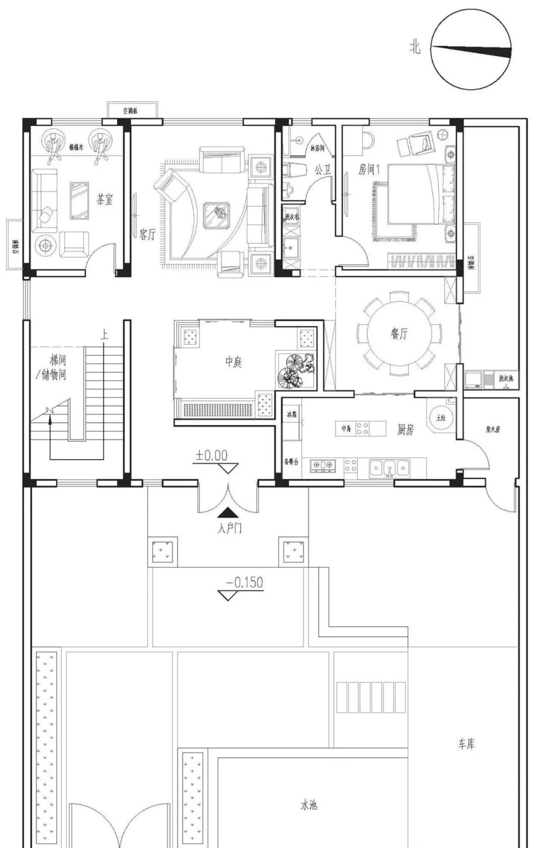
户型概况:5室4厅4卫1厨1茶室1储藏1衣帽1书房
点我咨询留下您的需求,我会第一时间回复您!
点我咨询

