多数人的梦寐以求!6款自建别墅彰显野心十足,一看就是大人物
开间:18米
进深:15米
占地面积:270平方米
建筑面积:365平方米
层数:二层
|
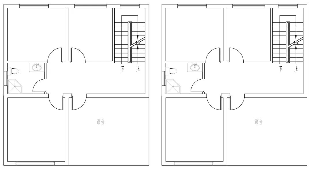
面宽:14.3米
进深:11.5米
建筑面积:285.0㎡
建筑层数:2层
屋顶形式:坡屋顶

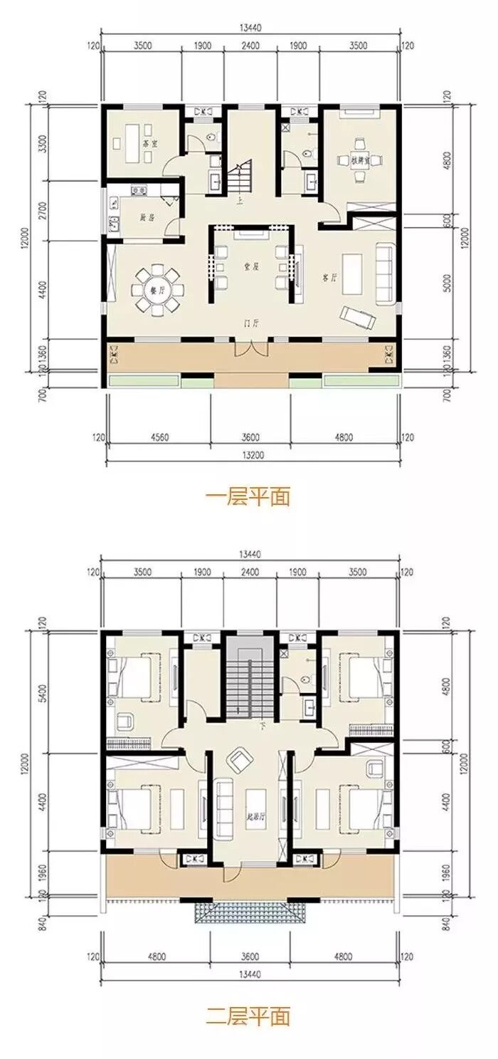
开间:13.4米
进深:12米
占地面积:160平方米
建筑面积:363平方米
层数:二层
别墅风格:欧式


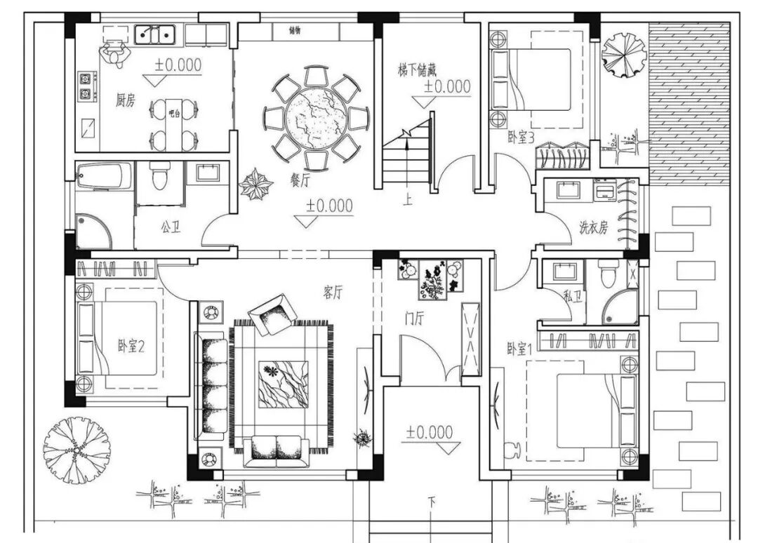
开间:9米
进深:11.5米
占地面积:99平方米
建筑面积:386平方米
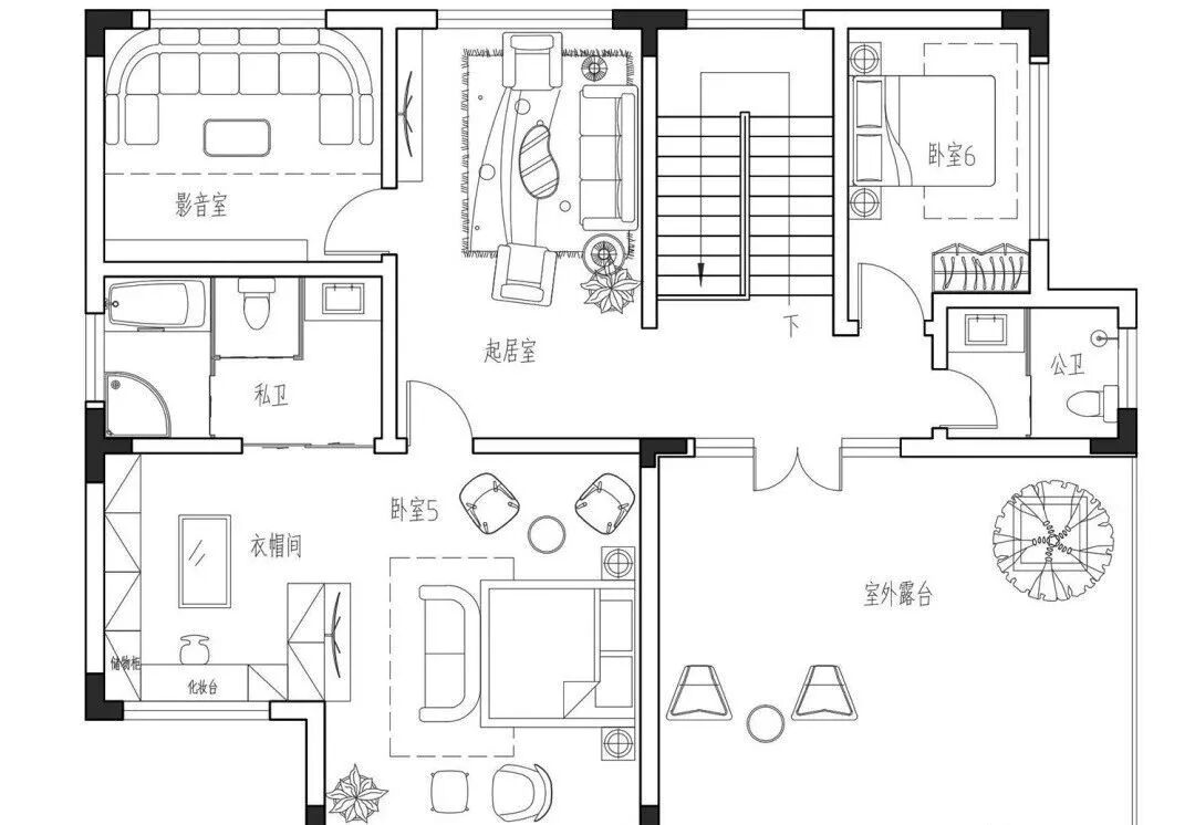
户型概况:6室2厅3卫1厨1储物1衣帽1书房
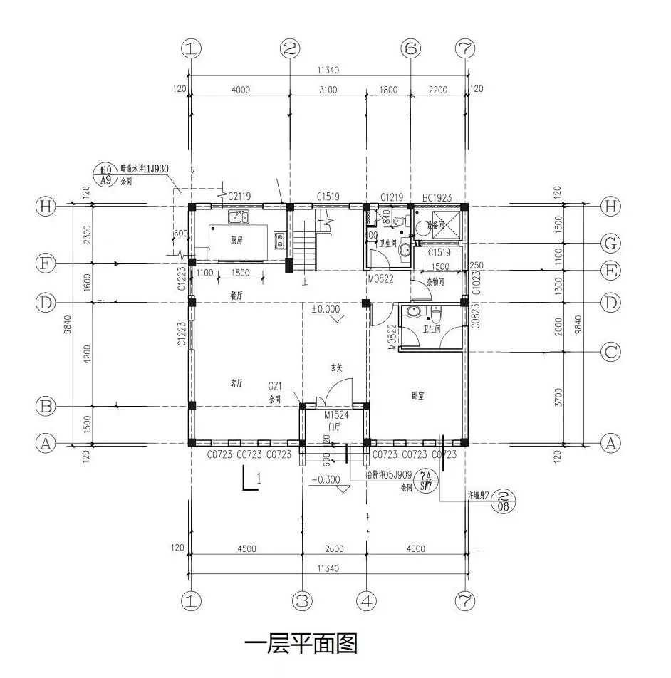
开间:11.34米 进深:9.84米 占地面积:111.59平方米 建筑面积:277.29平方米 建筑层数:3层 建筑高度:11.7米(含屋顶) 屋顶形式:坡屋顶 |


开间:13.7米
进深:14.5米
占地面积:165平方米
建筑面积:330平方米


