3款超级有排场的别墅,第二套30万,错过就太可惜了
开间:15米
进深:15米
占地面积:180平方米
建筑面积:376平方米
层数:二层
屋顶形式:坡屋顶


开间:9米
进深:12.7米
占地面积:110.5平米
建筑面积:221平米

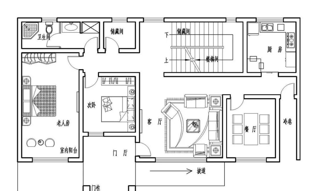
面宽:15.3米
进深:8.4米
建筑面积:258.0㎡
建筑层数:2层
屋顶形式:坡屋顶


开间:15米
进深:15米
占地面积:180平方米
建筑面积:376平方米
层数:二层
屋顶形式:坡屋顶


开间:9米
进深:12.7米
占地面积:110.5平米
建筑面积:221平米

面宽:15.3米
进深:8.4米
建筑面积:258.0㎡
建筑层数:2层
屋顶形式:坡屋顶

