骄傲了!8款自建别墅越看越好看,建一栋财运滚滚来
开间:11.7米
进深:10米
占地面积:110平米
建筑面积:201平米

开间:15米
进深:10米
占地面积:150平方米
建筑面积:232平方米



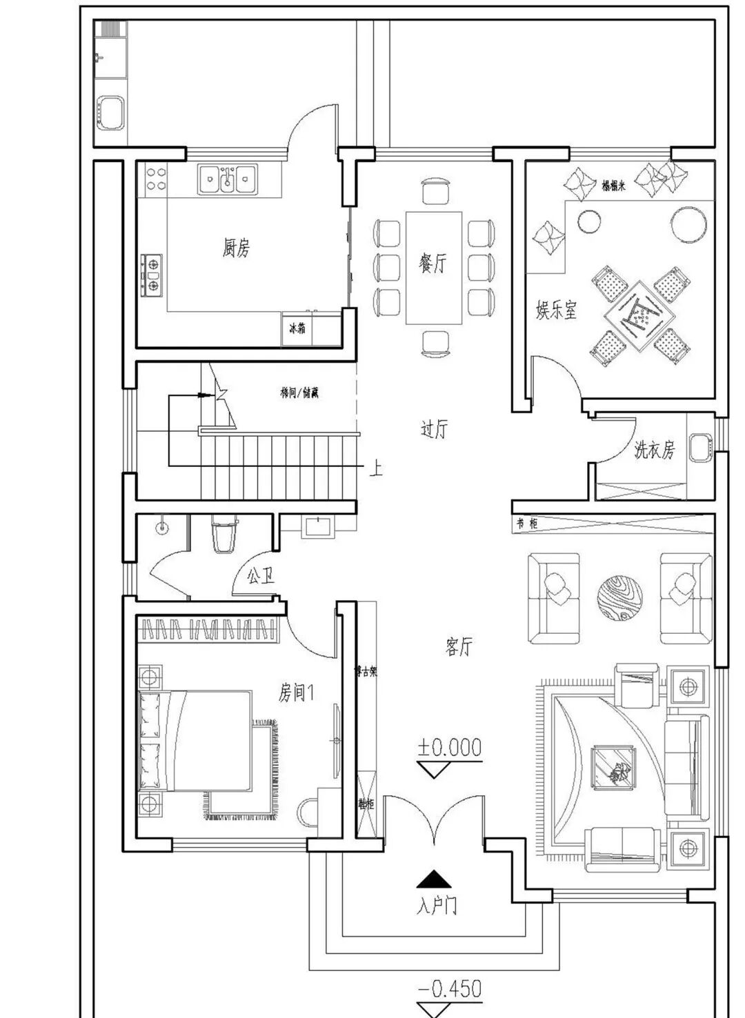
开间:9.9米
进深:9.8米
占地面积:97平方米
建筑面积:309平方米
建筑层数:3层


开间:6米
进深:10米
占地面积:60平方米
建筑面积:286平方米
建筑层数:4层





开间:9.3米
进深:12.8米
占地面积:122.1平方米
建筑面积:338.66平方米
开间:10.4米
进深:11.6米
占地面积:117.20平方米
建筑面积:395平方米
层数:3层
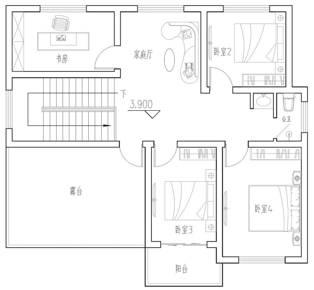
开间:9.9米
进深:9.8米
建筑面积:370平方米
建筑层数:3层





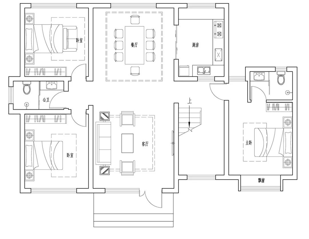
开间:10.7米
进深:13.7米
占地面积:143平方米
建筑面积:262平方米



扫码了解更多建房行业资讯

