28万轻松建别墅!6款个性别墅,不喜欢算我输
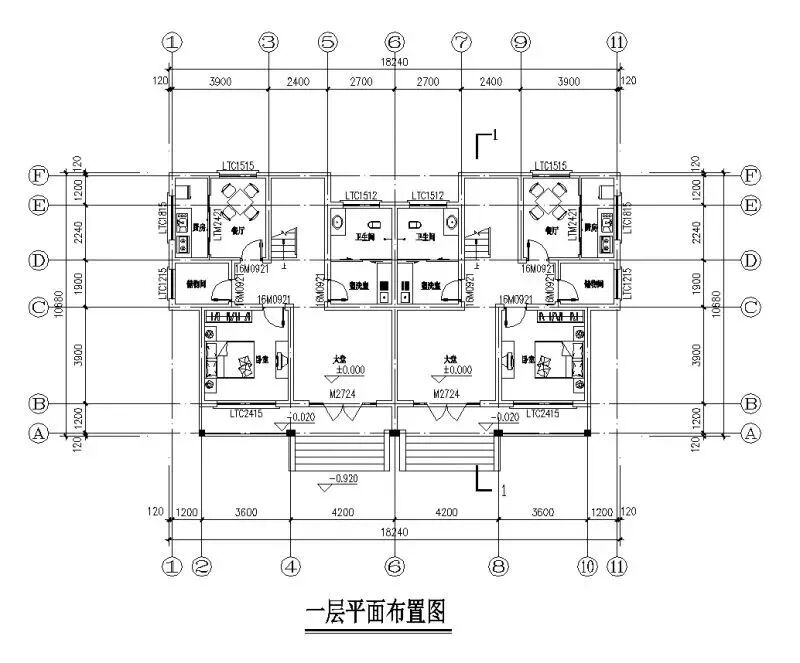
开间:18.24米
进深:10.68米
占地面积:220平方米
建筑面积:508平方米
建筑层数:3层


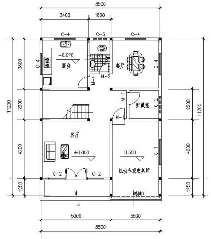
开间:8.5米
进深:11.2米
占地面积:117.2平米
建筑面积:226.8平米
楼层:3层


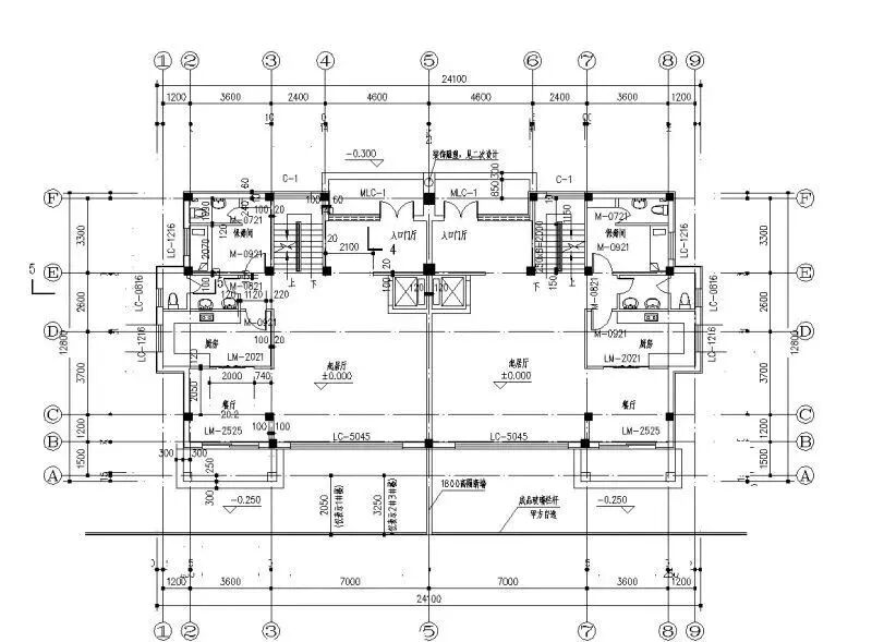
开间:24.1米
进深:12.8米
地下面积:212平方米
地上面积:689平方米
建筑层数:3层


开间:18.6米
进深:11.7米
占地面积:217.62平方米
建筑面积:277.8平方米
层数:三层


开间进深12米*11米,
占地面积127平方米,
建筑面积254平方米,



开间进深 13.7*10.2,
占地面积131平方米,
建筑面积291平方米



扫码了解更多建房行业资讯
版权说明:本网站部分转载文章,版权归原作者所有,如涉及作品内容、版权和其他问题,请与本网联系,我们将在第一时间删除内容!

