20万的自建别墅长什么样?这6套别墅大家看值吗?

占地尺寸:12.3mX9.4m
占地面积:107㎡
建筑面积:196㎡
建筑高度:7.95m
建筑概况:3室3厅2卫1厨1车库



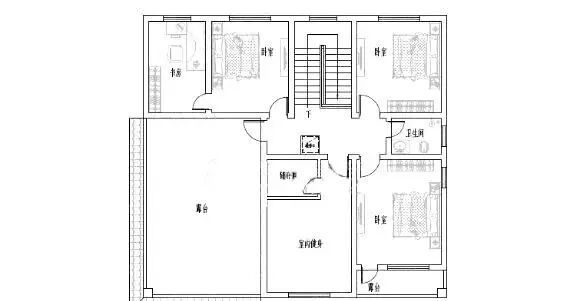
占地尺寸:11.8mX8.8m
占地面积:108㎡
建筑面积:207㎡
建筑高度:8.00m
建筑概况:4室3厅2卫1厨1车库


开间:9.5米
进深:16.6米
占地面积:135.6平方米
建筑面积:326平方米
建筑高度:11.6米

开间:12.9米
进深:12米
占地面积:160.83平方米
建筑面积:477.39平方米
层数:三层



开间:13.5米
进深:11米
占地面积:125.15平方米
建筑面积:335.24平方米
建筑高度:13.5米
开间:12.9米
进深:10.8米
占地面积:139平米
建筑面积:309平米
建筑高度:11.7米
扫码了解更多建房行业资讯

