农村自建房图纸分享,用一层的价格盖出二层楼,省时省力省钱
户型一
农村自建房不能盲目追求大,而应该根据自家的人口和使用情况适度建设,因此未必所有家庭都需要建满两层甚至三层。但是农村又追求房屋高度,至少盖出来不能比邻居家低。家里住不了两层那么大面积却又不得不盖两层,以便高度跟邻居一致。其实经过设计还是有办法在一层的基础之上盖出两层的效果。
今天这款图纸就是一个很好的范例,省时省力还省钱。

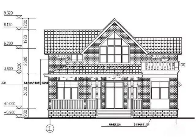
上图为效果图,可以很明显的看出,主体结构是一层,在二层的位置上用装配式钢结构造出来一个类似阁楼,但实际上比阁楼更大的突出部。二层阁楼加上尖顶的高度,不仅让这个一层为主的自建房高度上超过普通二层楼,而且在工程建设成本上远低于普通二层楼。毕竟二层建筑面积小,整体造价只相当于一层楼的三分之一。
一层平面图

面积和造价虽小,但使用起来绝对方便,进门是客厅,正对大门设计有储物间和楼梯,楼梯下方还设有去后院的小门,方便进出。厨房位于客厅东侧,跟餐厅结合在一起。这个户型的特点是,厨房餐厅不对建筑内部开门,而是放在了一层门廊下面,对门廊开门。这样的设计方案最大限度保留了上一代农村住宅的居住习惯。
因为在现有未经改造的农村住宅中,餐厅厨房一般是不设在建筑内部的,而是单独放在院子一侧,空间大排油烟也方便。
另外这套户型一层设计了三个卧室和一个卫生间,妥妥满足一代人的居住需求。整体面宽13米、进深12.8米,加上小院之后,正好满足农村宅基地尺寸。完全用满宅基地也是提高建房效率的必要条件。
二层平面

接下来看二层平面,从楼梯上来之后,二层阁楼是两室设计,南面一个大卧室,北面一个小卧室,不过即便如此,北面的卧室也是可以朝南开窗采光的,这个很有必要,不然没有南向窗户的房间到了冬天会非常难受,不仅冷,而且通风状况不好。走廊东侧设计了卫生间一个,旁边有储藏间。
露台也是这款自建房的特色之一,东西两侧分别设计有大小两个露台,可以从主卧室或者走廊分别进入两个露台之中。这样的设计在农村晾晒物比较多的家庭是很实用的。

再看立面图,一层高度3.6米,二层主体部分高度稍小为2.6米,但是尖顶部分做到了将近两米,这样一来整个建筑总高度达到了八米多,是不是很划算。
户型二
还有一户如图所示,这栋农村自建二层别墅,虽然是在夜晚,但看得出它是很现代,很时尚的,而且给人感觉非常祥和,安宁。

一层平面图上,我们可以看到,包括车库在内,面宽为10.1米。进门是客厅,然后是餐厅、厨房、卧室和公共卫生间,楼梯间和储藏室,一切都刚刚好,卧室恰好在距离车库最远的地方,不会影响休息。

二层平面图上,是4间卧室,一间带卫生间的主卧室和3间次卧。另外还有一个公共卫生间,以及连着阳台的家庭起居室。起居室和主卧都在向阳的一面,可以想见,太阳出来的时候,屋内会有多亮堂。两个卫生间,刚好也解决了人们早上上厕所的燃眉之急。

这栋农村二层自建别墅,应该说设计是比较合理的。至少在满足家用方面来说,做到了不浪费每一寸面积。外表时尚感强,还做了车库。占地面积不大,只有二层高,建造成本不会太高。这栋别墅,既满足了年轻人心理需求,也让老年人满意。你觉得怎么样呢?

