三层欧式别墅,两个月就能入住,想回家过个豪华年的可以考虑一下
少年离家,奋斗廿年,城市中虽早已拥有了属于自己的一片天地,但乡愁永远是割舍不掉的那份不了之情。想着待到两鬓斑白时,一定还要回到乡下,看夕阳西下,细数人生,共话桑麻。
现在农村建别墅虽然追求造型独特,但是还是不能太过浮夸。今天保恒轻钢别墅推荐的这栋三层别墅,造型非常丰富,却不失沉稳。整体外墙颜色端庄大气,修建在乡村中一定独树一帜,十分抢眼。
今天给大家推荐一款乡村的三层别墅,外观时尚大气,室内布局也很好,一定是大家喜欢的类型,大家一起来看看吧!
基本信息
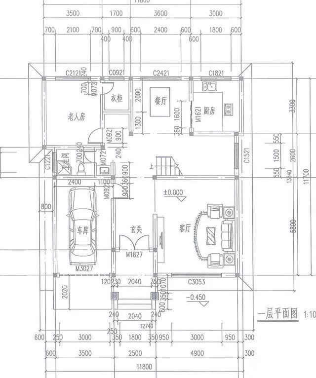
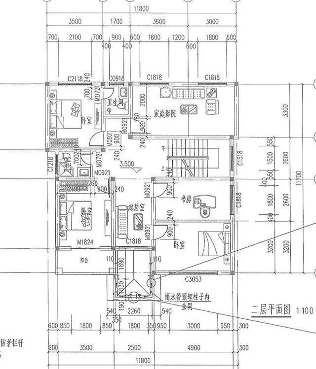
占地尺寸:11.8x11.7米
占地面积:140.24㎡
建筑面积:393.58㎡
建筑结构:装配式建筑轻钢结构

一 层:客厅、餐厅、厨房、卫生间、储物间,车库、卧室;

二 层:2间卧室、卧室带卫生间、阳台、书房、娱乐间、卫生间;

三 层:卧室带卫生间、卧室、卫生间,露台、阳台。
为什么现在大家都喜欢在农村建房子呢?除了农村环境更好之外,城市商品房存在很大的局限性,开发商建成什么样就是什么样,个性化不足。总之房子在,根就在!建房是我们农村人的一件大事,从老房到喜迁新居,背后有着太多的故事。你是否也 想在家乡建一栋呢?
版权说明:部分图文素材来源于网络,版权归原作者所有,如涉及作品内容、版权和其他问题,请与本网联系,我们将在第一时间删除内容。
对于这一款别墅,你觉得怎么样呢?有兴趣的可以私信我或联系客服人员咨询交流!

