听说两层欧式别墅很流行,这套怎么说,能让你满意吗?
项目概况
尺 寸:面宽14.0米 进深19.0米
建筑面积:283.0㎡

△总平面示意图
基地情况:
东:空旷场地
西:邻家住宅
南:村内道路
北:后山
项目简介:
业主在项目前期提供了部分参考资料,并对立面造型有一定的需求,这让设计师在立面造型的时候有了一定的参考,同时对立面效果进行优化设计。因此根据场地情况及业主需求和喜好,将项目形式确定为南北朝向的二层欧式别墅。
平面布局:
户型概况:
2层/5室 1厅 3卫 1厨 1土灶 1储藏 1暖房 1茶室 1衣帽 1阳台 2露台

△一层平面图
一层布局相对合理,暖房与土灶脱离别墅主体,东侧设置老人房与玄关相邻便于出行;西北侧设置与餐厅相连的半开放式厨房,更加增加了房子的通透感

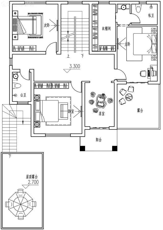
△二层平面图
二层东侧预留大面积空间,设置了独卫、衣帽间与露台丰富主卧的功能需求,南侧设置茶室与阳台相邻增添整层的待客休闲空间。
造型设计

△鸟瞰图
建筑整体采用欧式风格,屋顶设计了一个坡屋顶,使得雨天排水更加便捷。立面主体以不规则的形态呈现不一样的视觉体验。

△南侧效果图

△西南效果图
宅基地坐北朝南,内部合理的运用空间,厨房在西北角与餐厅相连提升了用餐空间,老人房在东侧便于采光,玄关设计突出建筑整体的层次感。

△西南侧效果图

△东南侧效果图
建筑南侧设置露台,使得建筑的景观功能大大增强,同时为室外休闲活动提供了充足的空间,搭配多种大面积开窗设计,在立面造型上为建筑带来更多层次变化。

△东立面图

△南立面图

版权说明:部分图文素材来源于网络,版权归原作者所有,如涉及作品内容、版权和其他问题,请与本网联系,我们将在第一时间删除内容。

