【分享】新中式风格的别墅就是这么好看
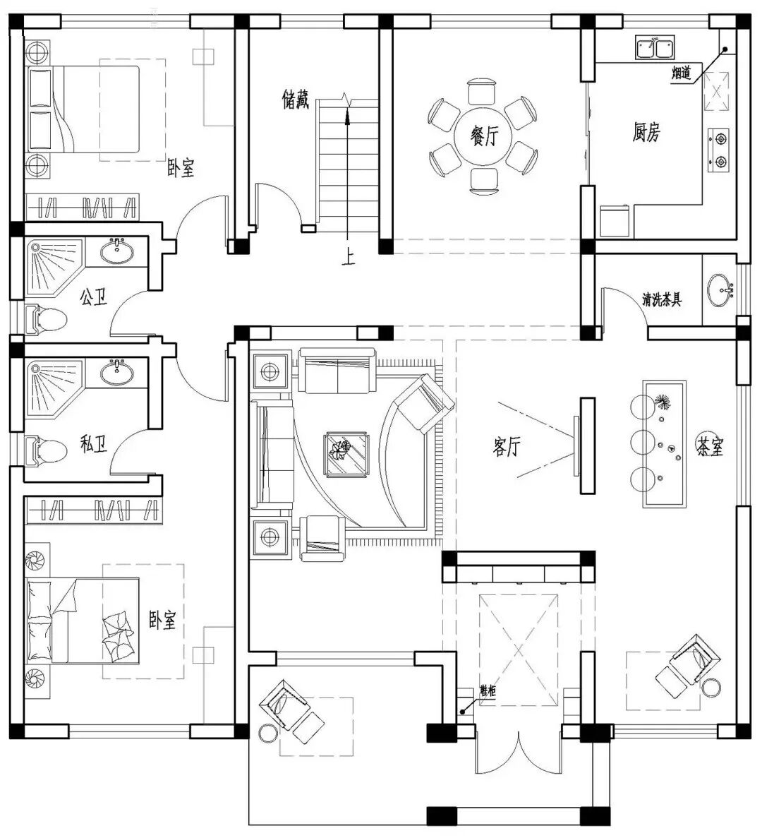
建筑整体为新中式风格,主体以一层大理石配合二层真石漆形成极有质感的外立面。屋顶由四坡屋脊演变而来,一些空间变化让整体层次自然形成。

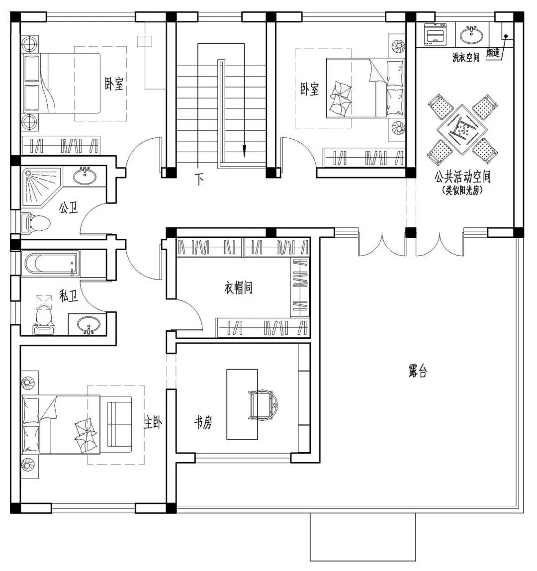
二层设有:主卧(卫生间、衣帽间、书房)、2卧室、公卫、阳光房、露台。
建筑整体为新中式风格,主体以一层大理石配合二层真石漆形成极有质感的外立面。屋顶由四坡屋脊演变而来,一些空间变化让整体层次自然形成。

二层设有:主卧(卫生间、衣帽间、书房)、2卧室、公卫、阳光房、露台。