你以为农村建房很贵?几十万也能建别墅,10套方案随你挑
农村建一套房子需要多少钱,100万,200万,其实农村建房真的没你想的那么贵,如果不是要建的特别豪华,建简单温馨的小别墅,其实要不了多少钱?今天小编给大家推荐的这10套方案,主体造价都不贵,当然不包括装修和庭院、地皮的费用。
户型一
开间10.8米,进深11.5米,占地面积包括院子196平方米,建筑面积179平方米,主体造价适中。



户型二
一层面积87.82平方米,二层面积73.96平方米,总建筑面积161.78平方米,建筑占地面积87.82平方米,院落占地面积204.42平方米



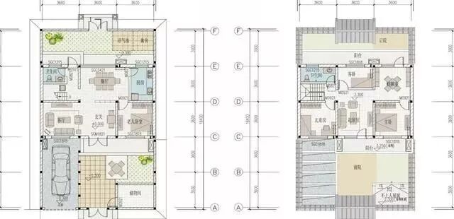
户型三
建筑占地面积101.9平方米,总建筑面积203.8平方米,院落占地面积205平方米,采用的是装配式钢结构,抗震等级为七级,建筑使用年限为50年,主体造价30万。



户型四
户型面积不大占地85.6平方米,院落占地面积216平方米。



户型五
一层建筑面积95.38平方米,院落占地面积180平主米。二层建筑面积82.64平方米。



户型六
一层99.41平方米,二层93平方米,总建筑面积192.42平方米,院落占地面积219.88平方米。采用的是二层装配式钢结构。



户型七
一层建筑面积88.8平方米,二层建筑面积39.1平方米,总建筑面积127.9平方米,院落占地面积216平方米。



户型八
一层建筑面积99平,二层72.9平,总建筑面积172平方米,院落占地面积200平方米。采用的是二层装配式钢结构。



户型九
建筑占地面积99.65平方米,院落占地面积205.84平方米,总面积196.97平方米。



户型十
院落占地面积11.2*18.4米,前院进深7.2米,后院进深3.6米。




