3款漂亮的农村别墅,建好后肯定吸引全村目光,从此走上人生巅峰
现在农村经济条件越来越好了,人们对农村住房的条件也不断提高,因此农村别墅越来越流行。下面三款别墅户型,在农村也能轻松建起来,建好后肯定吸引全村目光,从此走上人生巅峰,迎娶白富美。
户型一:

效果图

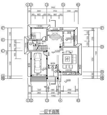
一层平面图

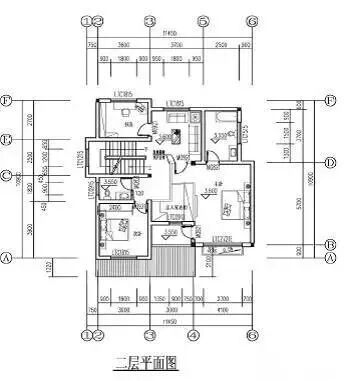
二层平面图

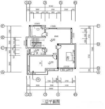
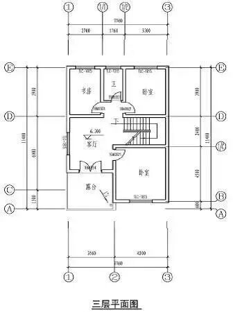
三层平面图
本户型占地面积约180平方米,建筑面积约400平方米,共三层,可以兄弟双拼建造,造价含装修在50万左右,造型方正,功能齐全,采光好。
户型二:

效果图
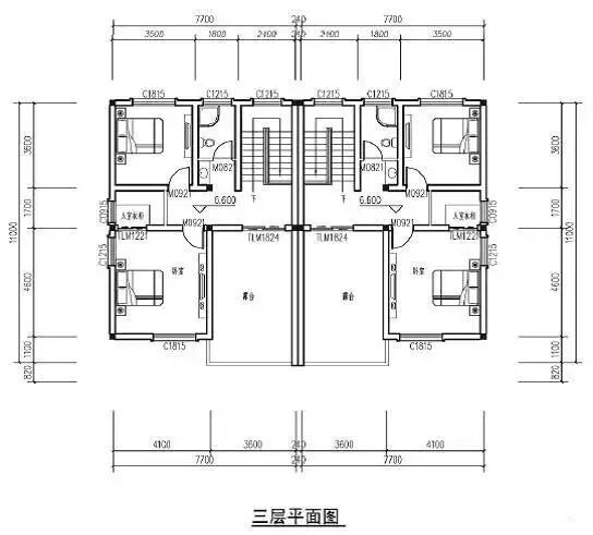
占地面积113.84平方米,布局合理,含车库,共三层,建筑面积320平方米。可以兄弟双拼。结构形式为装配式轻钢结构,可根据实际情况选择。

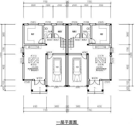
一层平面图


户型三:

占地面积113.84平方米,布局合理,含车库,共三层,建筑面积320平方米。可以兄弟双拼。结构形式为装配式轻钢结构,可根据实际情况选择。





