图纸千千万,最受欢迎的是它!5款二层别墅让你美名传全村
农村发展越来越好了,辛辛苦苦在外面务工的农村朋友们开始返乡,赚了小钱回乡盖房也成为一种趋势,大家都希望能建一套漂亮而又经济实惠的别墅。所以应广大朋友的需求,我们今天特意整理了五套二层经济实惠的别墅设计图,一次性满足你们,总有一款适合你,喜欢的朋友赶紧收藏吧!

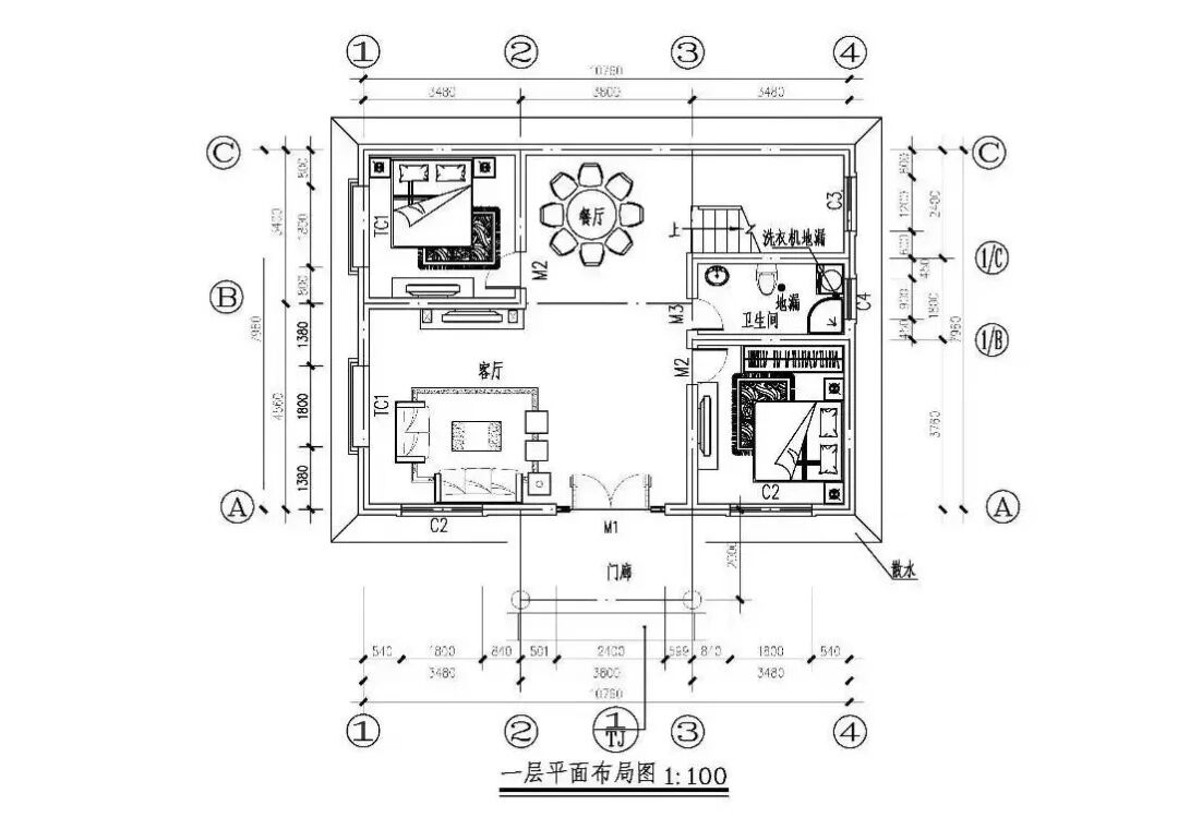
▲图片编号:18012801
一层平面图:

二层平面图:


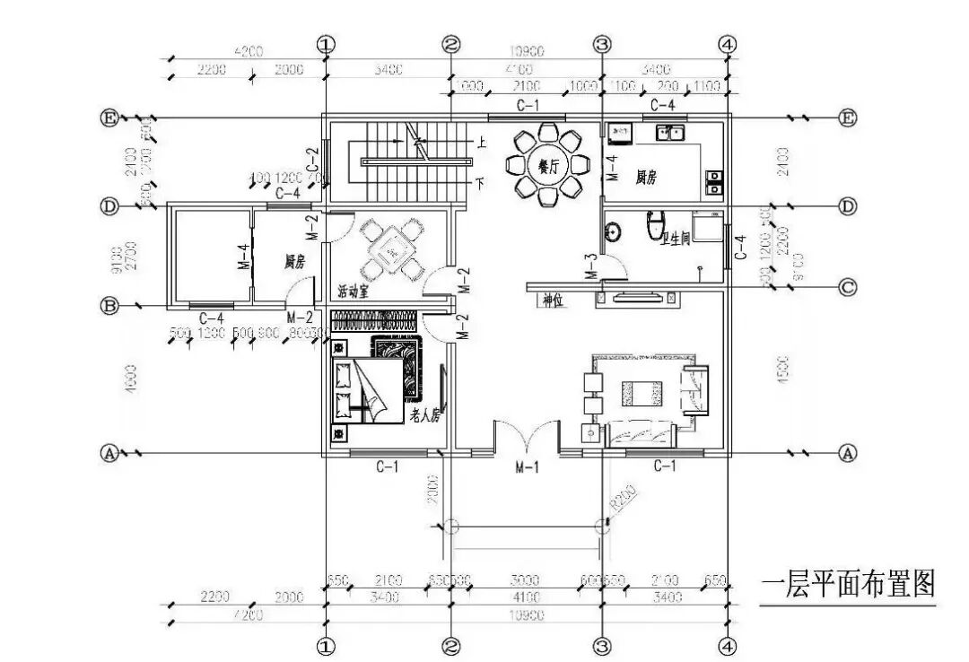
▲图片编号:08070101
一层平面图:

二层平面图:


▲图片编号:08070102
一层平面图:

二层平面图:


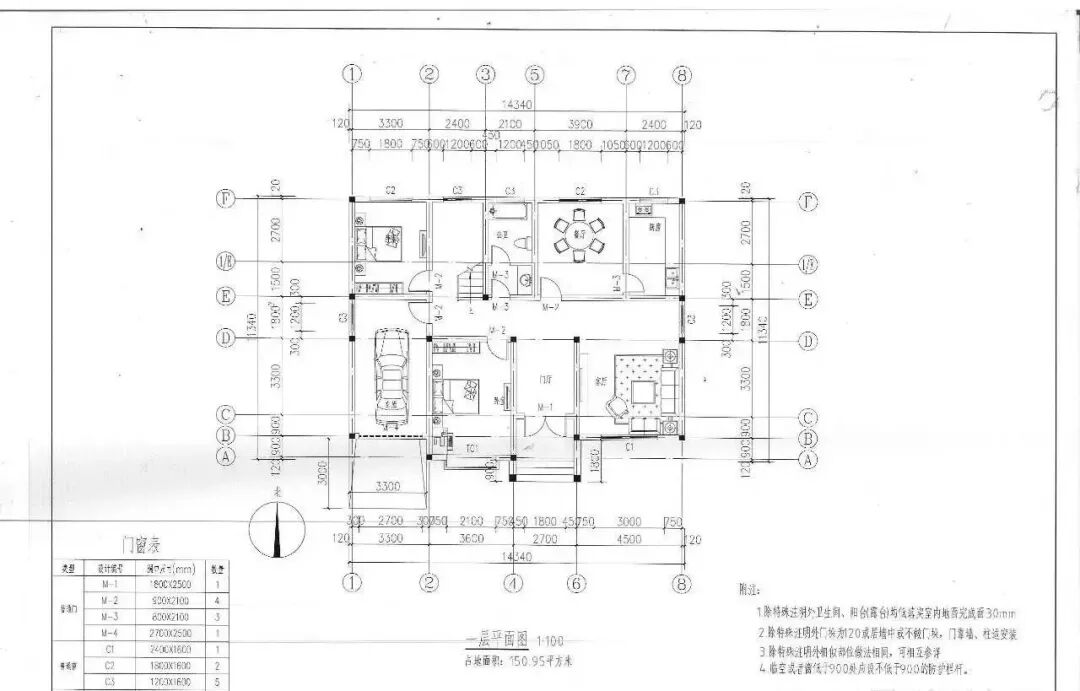
▲图片编号:08110102
二层平面图:


▲图片编号:08040104
一层平面图:

二层平面图:

END!

