最不出手就晚了!10款双拼别墅建一栋被夸眼光好
占地尺寸:16.2米*10.67米
占地面积:178.56平方米
建筑面积:357.12平方米



占地尺寸:19米*10.5米
占地面积:208平方米
建筑面积:558平方米




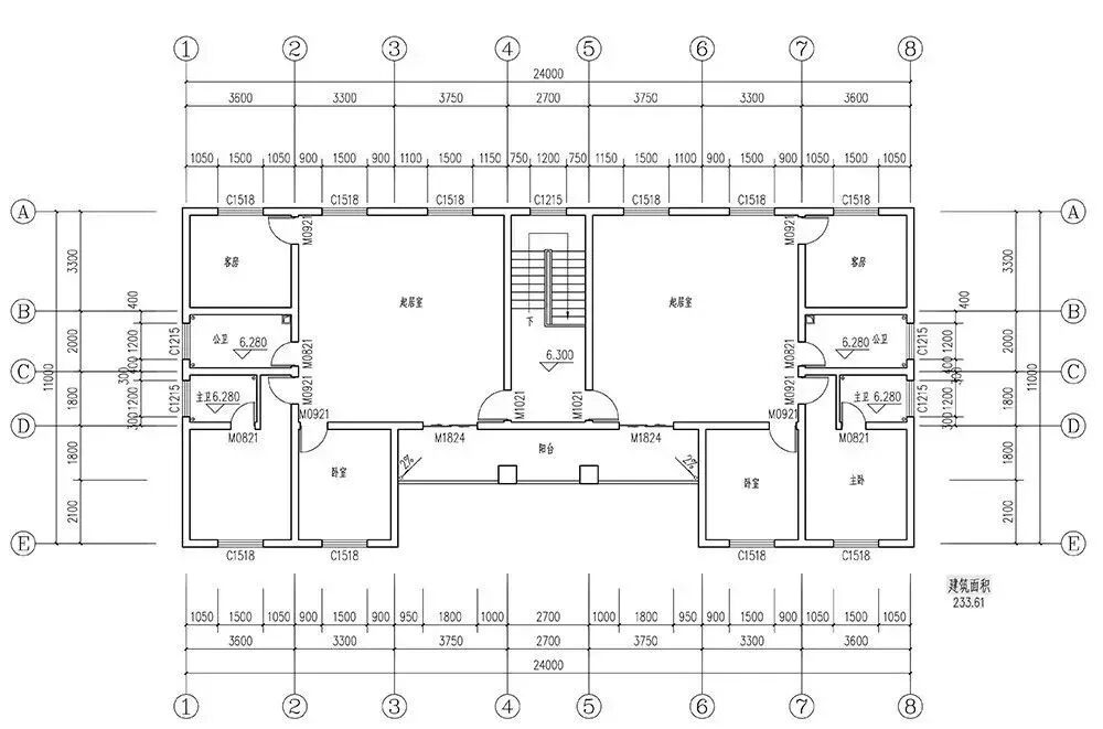
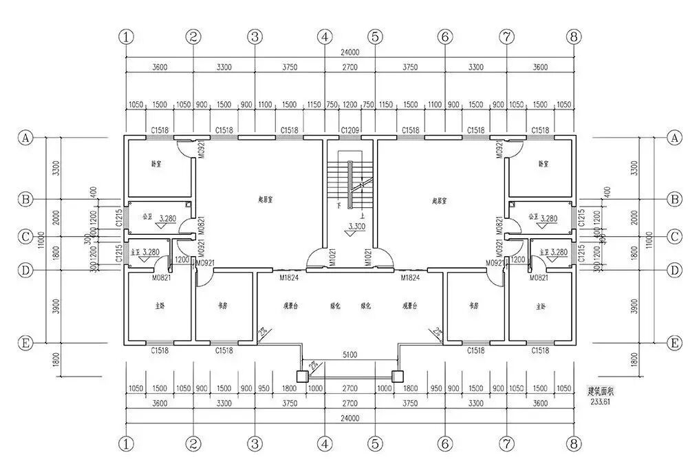
占地尺寸:12米进深11米(双拼24米)
占地面积:132㎡(双拼264平方米)
建筑面积:370㎡(双拼建筑面积为740平方米)




占地尺寸:22.8米x10.2米
占地面积:239.66㎡
建筑面积:599.15㎡


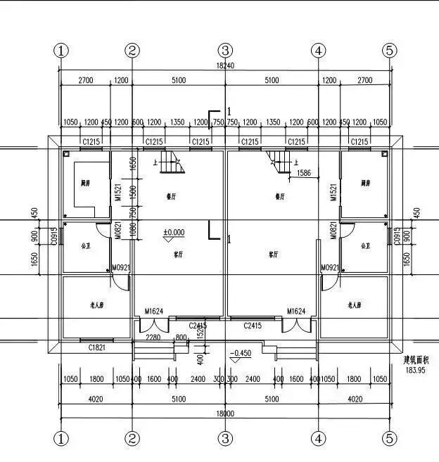
占地尺寸:18.7x12米
占地面积:140.24㎡
建筑面积:408㎡

占地尺寸:18.2米x10.7米
占地面积:194.74 ㎡
建筑面积:368㎡



面宽进深:17.14米×11米
占地面积:188.54㎡
建筑面积:445.78㎡



占地尺寸:12.6米×7.8米
占地面积:98.2㎡
建筑面积:202.71㎡
建筑层数:二层


占地尺寸:6.7米 进深7.6米 (双拼开间13.4米X7.6 )
占地面积:50.91㎡
建筑面积:101.82㎡


占地尺寸:18米*11.2米
占地面积:202.94平方
建筑面积:405.88平方米



扫码了解更多建房行业资讯
点我咨询留下您的需求,我会第一时间回复您!
点我咨询

