建房的福音!6款自建别墅怎么选都不会错
开间:11.10米
进深:15.27米
占地面积:118.42平方米
建筑面积:252.2平方米
建筑高度:12.9米
楼层:三层
面宽:20.44米(双拼)
进深:10.74米
总建筑面积:380.10平米(双拼)
占地面积:191.86平米(双拼)

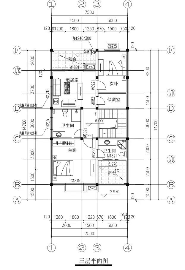
面宽:7.50米
进深:14.70米
总建筑面积:294.30平米
占地面积:112.10平米
建筑高度(檐口):8.93米
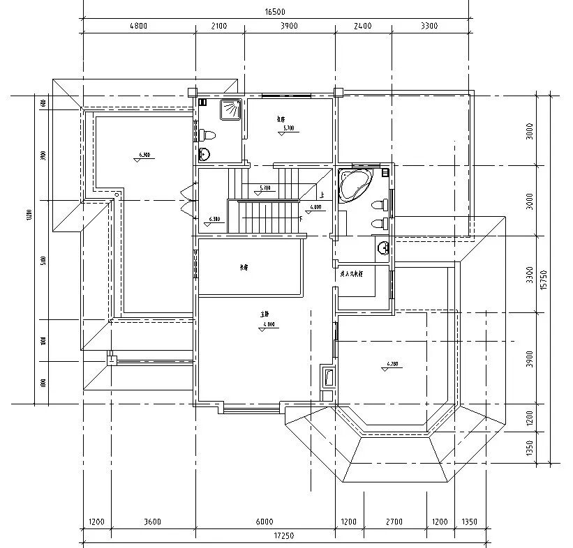
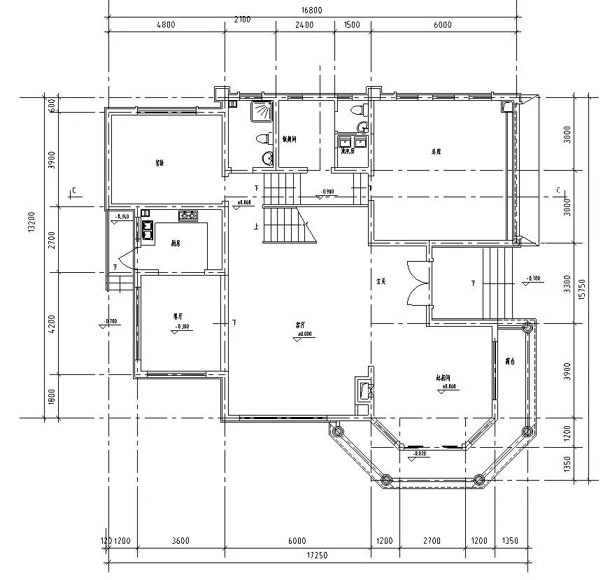
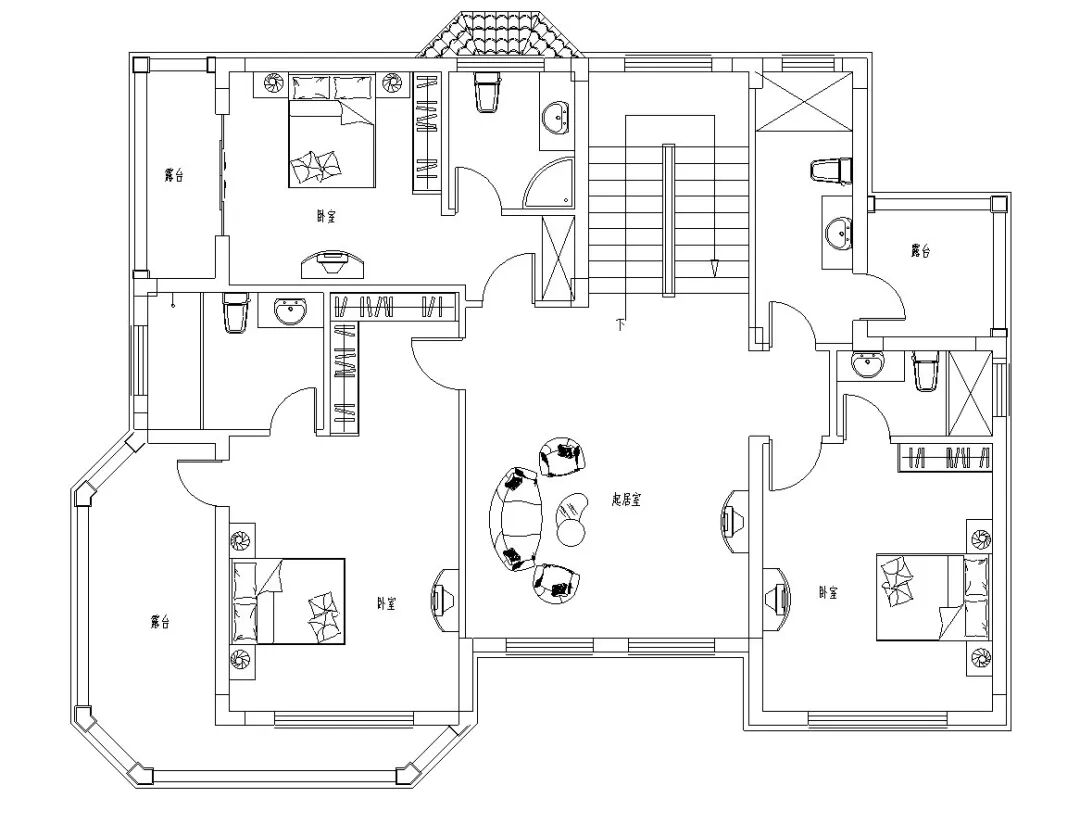
开间:17.25米
进深:15.75米
占地面积:223.23平方米
建筑面积:562.10平方米
楼层:3层
屋顶形式:坡屋顶
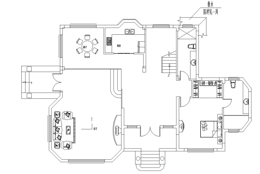
开间:18.44米
进深:12.5米
占地面积:200.26平方米
建筑面积:595.26平方米
楼层:3层
结构:框架结构
屋顶形式:坡屋顶
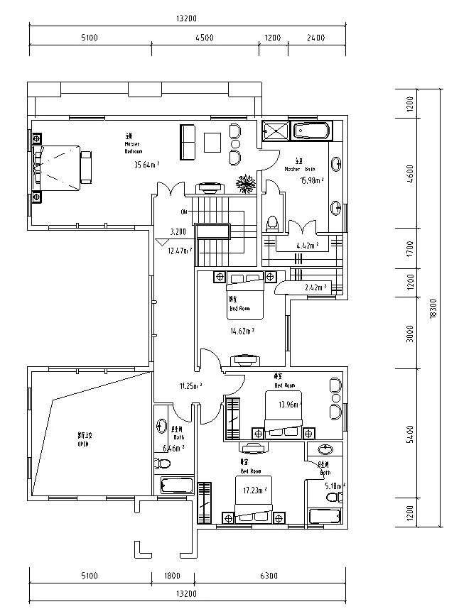
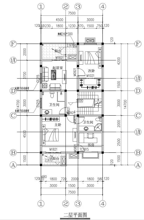
开间:13.2米
进深:18.3米
占地面积:230.6平方米
建筑面积:592.9平方米
楼层:2层+地下室
结构:框架结构
屋顶形式:坡屋顶
扫码了解更多建房行业资讯
点我咨询留下您的需求,我会第一时间回复您!
点我咨询

