5款两层三层轻钢别墅户型图分享,大气上档次!
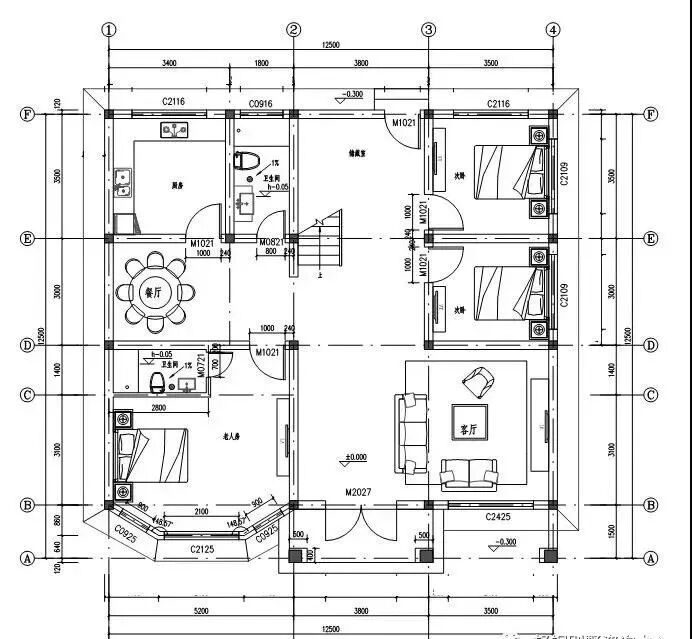
进深:12.5米
占地面积:146平方米
建筑面积:448平方米
建筑高度:9.8米(含屋顶)
层数:3层


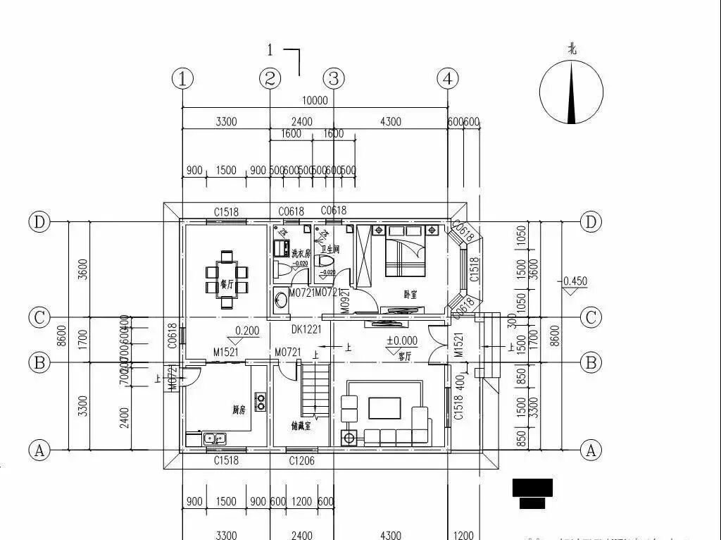
进深:11米
占地面积:144.5平方米
建筑面积:453.4平方米
层数:3层


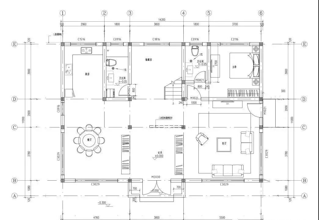
进深:13.1米
占地面积:136平方米
建筑面积:270平方米
层数:2层
主体结构:框架结构

占地面积:128平方米
建筑面积:385平方米

占地面积:130.46平方
建筑面积:329.96平米

End
点我咨询留下您的需求,我会第一时间回复您!
点我咨询

