气势不能输!这5款别墅让你成为村里最出众的一个
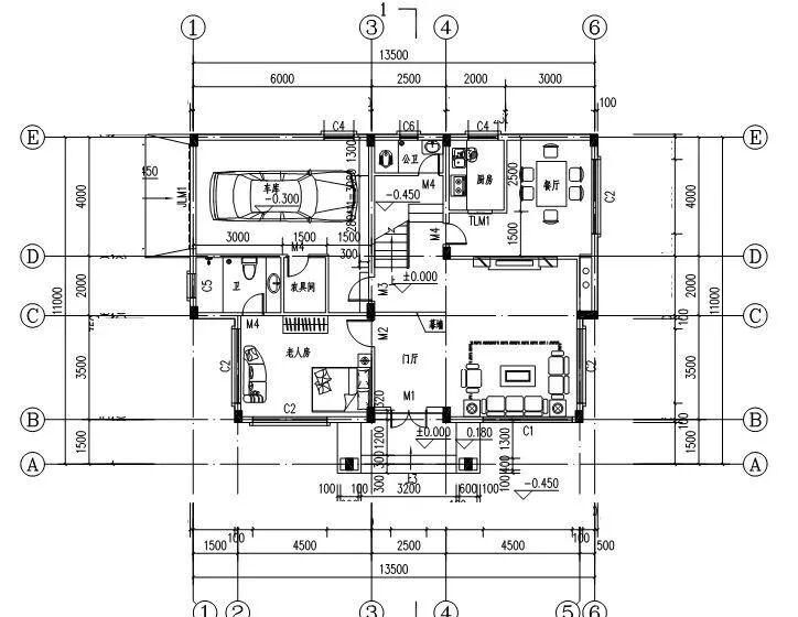
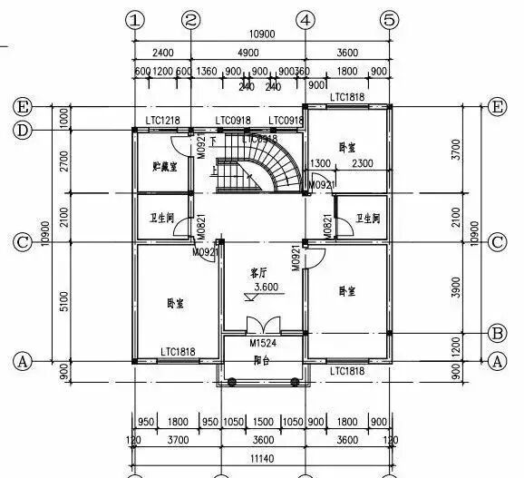
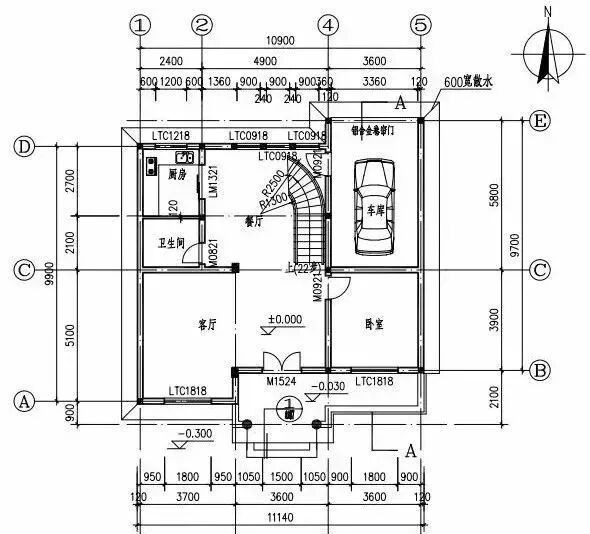
开间:11.14米
进深:9.7米
占地面积:105.9平方米
建筑面积:333平方米
建筑楼层:3层
建筑高度:11.95米
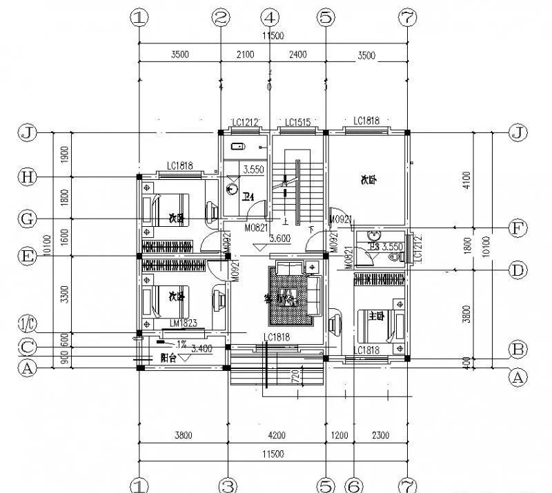
开间:11.25米
进深:9.25米
占地面积:109.4平方米
建筑总面积:294平方米
建筑层数:3层
建筑高度:11.52米
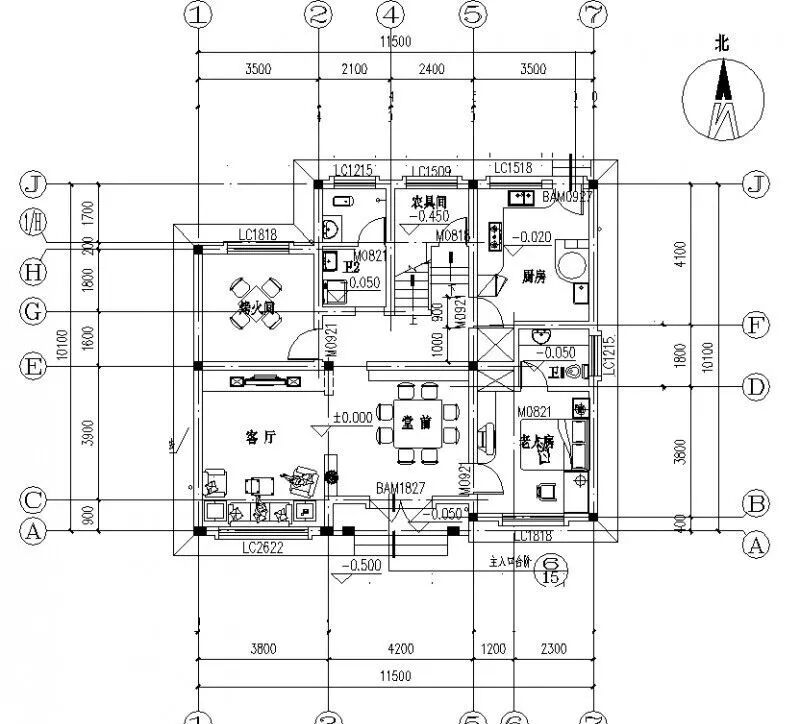
开间:11.5米
进深:10.1米
占地面积:109.68平方米
建筑面积:287.82平方米
建筑层数:3层
建筑高度:10.91米
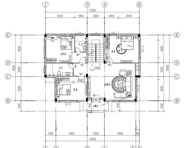
开间:13.5米
进深:11米
占地面积:125.15平方米
建筑面积:335.24平方米
建筑高度:13.5米
结构:框架结构
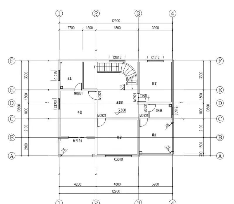
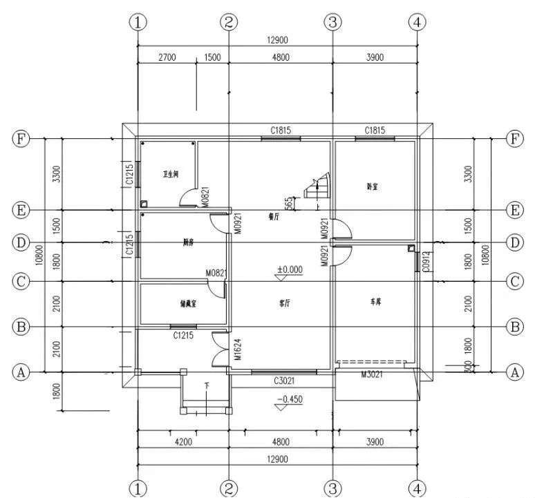
开间:12.9米
进深:10.8米
占地面积:139平米
建筑面积:309平米
建筑高度:11.7米
扫码了解更多建房行业资讯
点我咨询留下您的需求,我会第一时间回复您!
点我咨询

