谁敢小瞧你!这6款三层别墅气场大开建一栋不容忽视
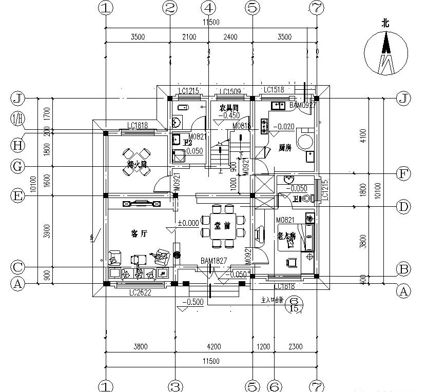
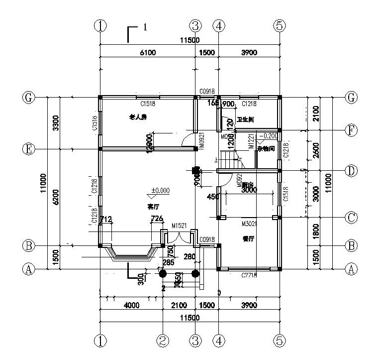
开间:11.5米
进深:11米
占地面积:126.5平方米
建筑面积:323.94平方米
开间:11.5米
进深:10.1米
占地面积:109.68平方米
建筑面积:287.82平方米

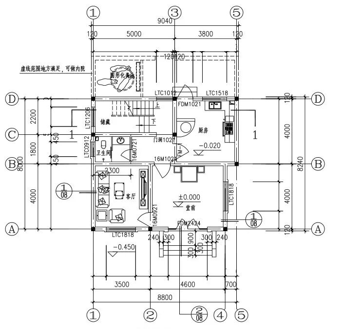
开间:10.54米
进深:10.4米
占地面积:100方米
建筑面积:300平方米
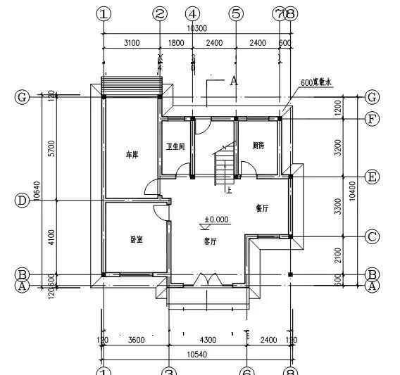
开间:8.8米
进深:8.24米
占地面积:97.42平方米
建筑总面积:246.60平方米
开间:10.4米
进深:8.3米
占地面积:100平方米
建筑面积:149.5平方米
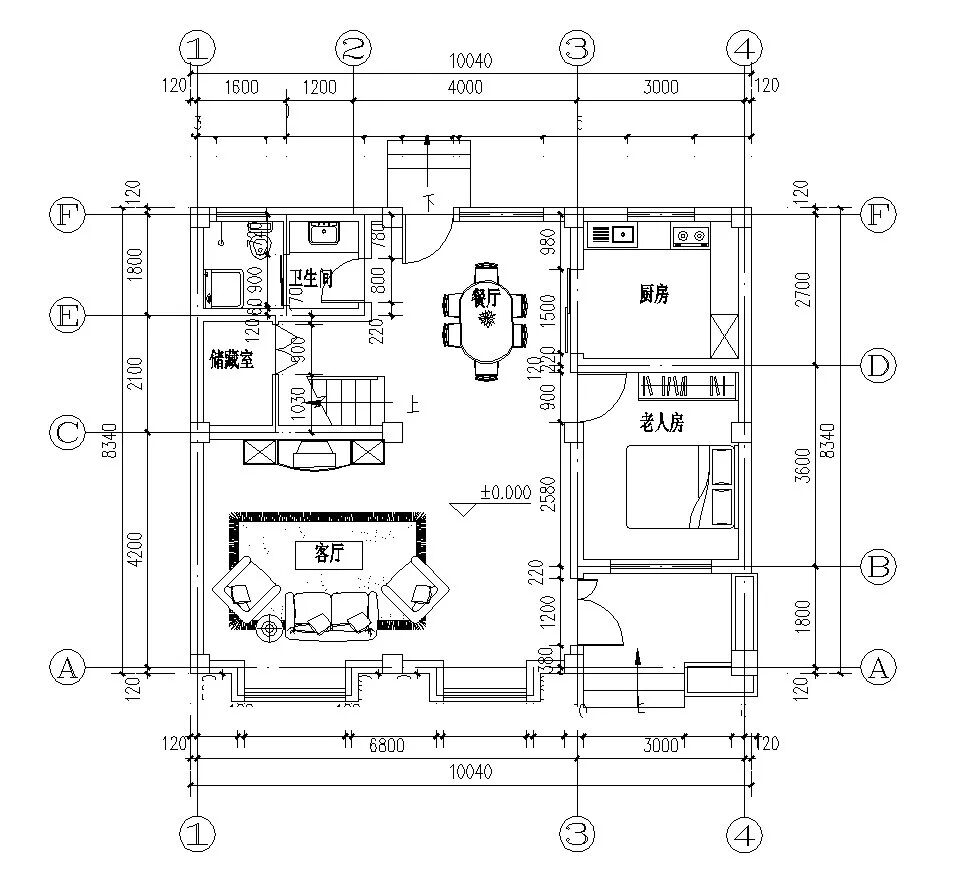
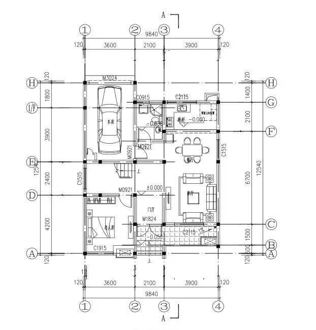
开间:9.84米
进深:12.54米
占地面积:112.67平方米
建筑面积:313.13平方米
扫码了解更多建房行业资讯
点我咨询留下您的需求,我会第一时间回复您!
点我咨询

