错过就是遗憾!5款别墅人人夸随便一栋都赚大了
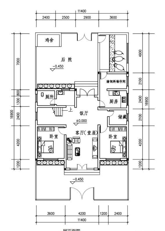
开间:11.4米
进深:16.9米
占地面积:192.66平方米(含庭院)
建筑面积:211.42平方米
建筑层数:二层
建筑高度:6.3米
屋顶形式:坡屋顶
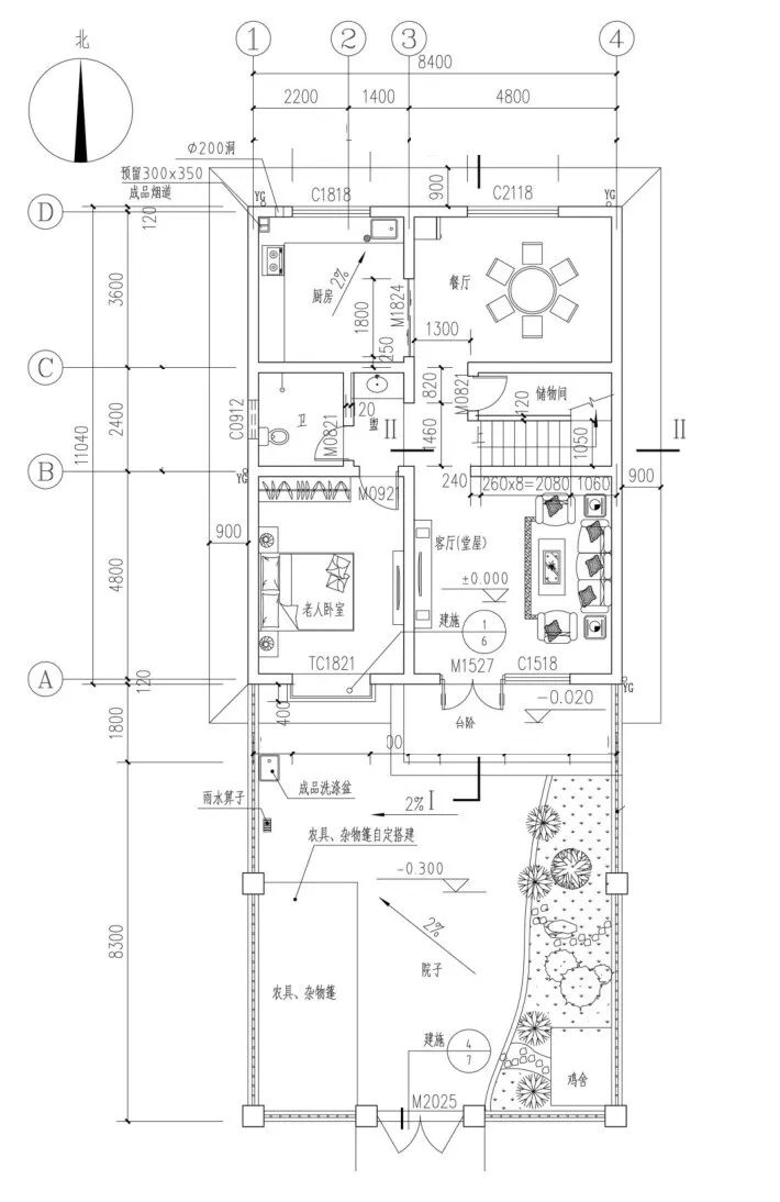
开间:8.4米
进深:11.04米
占地面积:95.38平方米
建筑面积:178.02平方米
院落面积:180.11平方米
建筑层数:2层
建筑高度:8.65米(含屋顶)
屋顶形式:坡屋顶
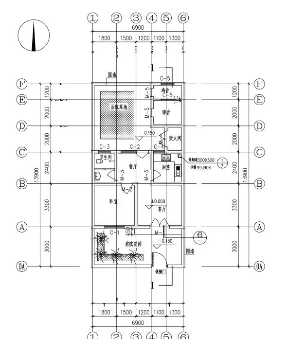
开间:6.9米
进深:13.9米
占地面积:100.96平方米
住宅面积:54.2平方米
建筑高度:5.6米
开间:12.74米
进深:10.34米
总占地面积:119平方米
总建筑面积:229.6平方米
建筑高度:9.6米
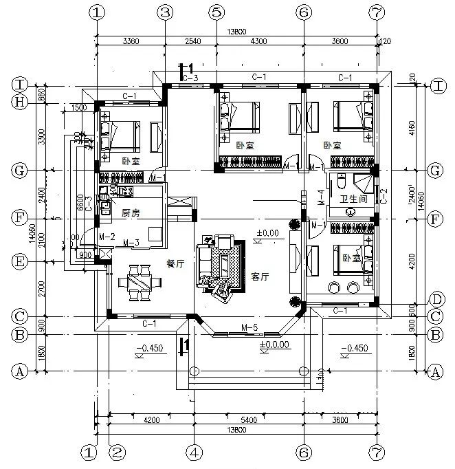
开间:13.8米
进深:14.06米
占地面积:109.68平方米
建筑面积:216.29平方米
建筑高度:10.25米
点我咨询留下您的需求,我会第一时间回复您!
点我咨询

